Maison neuve à
Tigery
(91250) Référence :
DC2491319_2
Prix du projet : Maison avec Terrain
prix 376 605 €
- 5 pièces
- 3 chambres
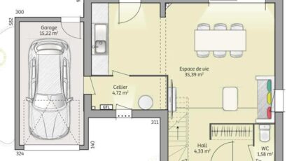
- Surface maison 90 m2
Maison T5 (90 m²) à vendre à Tigery
MAISON 5 PIÈCES NEUVE - PROCHE DE PARIS
En vente : à côté de la station Corbeil-Essonnes (Paris à 40 min avec le RER D), notre agence Maisons France Confort Melun est heureuse de vous présenter cette maison de 5 pièces de 90 m² à Tigery (91250).
C'est une maison de 2 niveaux. Elle inclut trois chambres, une cuisine et une salle de bains. La maison est neuve.
Le terrain du bien s'étend sur 392 m².
L'École Primaire les Ormes et l'École Primaire le Clos sont implantées à moins de 10 minutes à pied. Niveau transports en commun, on trouve la ligne de RER D (Corbeil-Essonnes) ainsi que 23 gares à moins de 10 minutes en voiture. Il y a un tennis, trois commerces et une boucherie-charcuterie à quelques minutes à peine.
Elle est proposée à l'achat pour 376 605 €.
Prenez contact avec notre constructeur (David CORDIER : 06-10-79-38-15) pour plus d'informations sur la maison.
Annonce proposée par un Agent Commercial Partenaire.
Mentions légales
Terrain proposé par un partenaire foncier selon disponibilités et autorisation de publicité au prix de 162 000 €. Hors droit d'enregistrement et frais de notaire. Terrain + Maison proposés au prix de 376 605 € (Hors branchements et raccordements, papiers peints, peintures, revêtement de sol dans les chambres. Tarif modifiable sans préavis). Etiquette énergie : A. Différents modèles disponibles pour ce terrain. Assurances et garanties du constructeur (RC professionnelle, décennale, dommage ouvrage, garantie de remboursement de l'acompte, livraison à prix et délai convenu) : https://www.maisons-france-confort.fr/mentions-legales/. HEXAOM Services est enregistré auprès de l'ORIAS en tant que Courtier en financement, Niveau 1, sous le numéro 14001345.Agence Maisons France Confort de Melun (77000)
- Téléphone :
- 01 64 14 43 20
- Adressse :
- 3 route de Nangis
77000 Melun, France