Maison neuve à
Tonneins (47400) Référence : AL2473131_4

Prix du projet : Maison avec Terrain

prix 297 000 €

  • 7 pièces
  • 4 chambres
  • Surface maison 146 m2

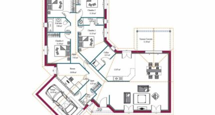
VENTE : maison F7 (146 m²) à 10 min de Tonneins
EMPLACEMENT PRIVILÉGIÉ - MAISON 7 PIÈCES NEUVE
Nous sommes heureux de vous proposer cette maison de 7 pièces de plain-pied de 146 m² à vendre, bénéficiant d'un emplacement privilégié à proximité de Tonneins (47400).
Elle inclut quatre chambres, une cuisine et deux salles de bains. La maison est neuve.
Le terrain de la propriété est de 1 000 m².
Cette maison se situe dans un quartier prisé. Plusieurs écoles (maternelle, élémentaire et collège) se trouvent à 10 minutes. Côté transports, il y a la gare Tonneins dans les alentours. On trouve un bassin de natation, des commerces, des boulangeries, un supermarché, une supérette et quatre boucheries-charcuteries à quelques minutes du logement. Le marché Centre-Ville anime les environs.
Elle est proposée à l'achat pour 297 000 €.
Contactez notre agence (LAGARDERE Alexandra :O6-61-54-08-10) pour toute information sur la maison, sur les démarches à suivre et sur les modalités de vente. Maisons de la Côte Atlantique Marmande est là pour vous accompagner dans tous vos projets immobiliers.

Mentions légales

Idée de réalisation en modèle prêt à décorer sur l'un de nos terrains partenaires, sous réserve de disponibilités. Voir détails en agence.

Contactez l'agence de Marmande

05 53 84 47 83

    * Champs obligatoires

    Vos informations sont traitées par HEXAOM et transmises à un conseiller commercial qui vous contactera afin de répondre à votre demande. Les plans et images présentés sur notre site sont la propriété d’HEXAOM et ne peuvent pas être reproduits sans son accord. Pour retrouver notre politique de protection des données personnelles et exercer vos droits conformément à la « loi informatique et liberté » cliquez-ici.