Maison neuve à
Torcy
(77200) Référence :
FS2260993_3
Prix du projet : Maison avec Terrain
prix 345 000 €
- 5 pièces
- 3 chambres
- Surface maison 90 m2
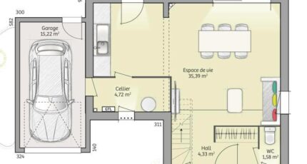
Maison T5 (90 m²) en vente à Torcy
QUARTIER RECHERCHÉ - MAISON 5 PIÈCES NEUVE
À quelques minutes du RER A (20 min de Paris), nous vous présentons cette maison de 5 pièces de 90 m² construite dans un quartier recherché de Torcy (77200).
Il s'agit d'une maison de 2 niveaux. Elle propose trois chambres, une cuisine et une salle de bains. La maison est neuve.
Le terrain du bien s'étend sur 377 m².
La maison se situe dans un secteur convoité. Des écoles primaires se trouvent à moins de 10 minutes à pied, tout comme une crèche. Côté transports, il y a les lignes A et E du RER ainsi que 11 gares à moins de 10 minutes en voiture. On trouve une bibliothèque, un tennis, des boulangeries, des commerces, une supérette, un bureau de poste et quatre épiceries à proximité du logement. Ne manquez pas le marché Centre-Ville chaque samedi matin.
Elle est proposée à l'achat pour 345 000 €.
Contactez notre agence (SOUMARMON Félix : 06-10-24-97-84) pour obtenir de plus amples renseignements sur la maison. Maisons France Confort Magny-le-Hongre est là pour vous accompagner dans tous vos projets immobiliers.
Annonce proposée par un Agent Commercial Partenaire.
Mentions légales
Terrain proposé par un partenaire foncier selon disponibilités et autorisation de publicité au prix de 175 000 €. Hors droit d'enregistrement et frais de notaire. Maison proposée, avec un contrat de construction de maison individuelle, dans le cadre de la loi du 19/12/1990, au prix de 170 000 € (Hors branchements et raccordements, papiers peints, peintures, revêtement de sol dans les chambres, qui sont chiffrés dans les travaux qui restent à charge du client. Tarif modifiable sans préavis). Étiquette énergie : A. Différents modèles disponibles pour ce terrain. Assurances et garanties du constructeur comprises (RC professionnelle, décennale, dommage ouvrage).Agence Maisons France Confort de Magny-le-Hongre (77700)
- Téléphone :
- 01 84 80 92 96
- Adressse :
- 11 rue de Courtalin
77700 Magny-le-Hongre, France
