Maison neuve à
Tosse (40230) Référence : NP2478261_3

Prix du projet : Maison avec Terrain

prix 499 000 €

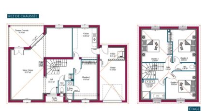
  • 5 pièces
  • 4 chambres
  • Surface maison 130 m2

Nathalie PENICAUT des maisons MCA Soustons, vous propose d'adapter le modèle Arpège, sur ce terrain d'environ 454m2, idéalement situé dans un petit lotissement, sur la commune de Tosse, situé à seulement 10 minutes d'Hossegor mais aussi de Soustons, et à moins de 30 minutes de Bayonne.

Le prix affiché comprend le terrain, les frais de notaire, les frais annexes (raccordements, bornage), et cette maison livrée prête à décorer.

Opportunité rare sur le secteur, contactez vite Nathalie PENICAUT au O6.16.80.14.29 à l'agence MCA de Soustons, afin qu'elle vous guide dans les démarches et vous accompagne dans ce projet de construction personnalisé, aux normes RE2020.

Le prix affiché comprend le terrain, les frais de notaire, les frais annexes (raccordements, bornage), et cette maison livrée prête à décorer.

Opportunité rare sur le secteur, contactez vite Nathalie PENICAUT au O6.16.80.14.29 à l'agence MCA de Soustons, afin qu'elle vous guide dans les démarches et vous accompagne dans ce projet de construction personnalisé, aux normes RE2020.

Mentions légales

Idée de réalisation en modèle prêt à décorer sur l'un de nos terrains partenaires, sous réserve de disponibilités. Voir détails en agence.

Contactez l'agence de Soustons

05 33 04 08 40

    * Champs obligatoires

    Vos informations sont traitées par HEXAOM et transmises à un conseiller commercial qui vous contactera afin de répondre à votre demande. Les plans et images présentés sur notre site sont la propriété d’HEXAOM et ne peuvent pas être reproduits sans son accord. Pour retrouver notre politique de protection des données personnelles et exercer vos droits conformément à la « loi informatique et liberté » cliquez-ici.