Maison neuve à
Toulouse
(31000) Référence :
SP2485180_2
Prix du projet : Maison avec Terrain
prix 405 000 €
- 5 pièces
- 4 chambres
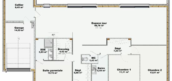
- Surface maison 110 m2
VENTE d'une maison de 5 pièces (110 m²) à Toulouse
MAISON 5 PIÈCES NEUVE
En vente : Maisons France Confort Tournefeuille vous présente cette maison de 5 pièces de plain-pied de 110 m² et de 430 m² de terrain à Toulouse (31100).
Elle propose quatre chambres, une cuisine et deux salles de bains. Cette maison est neuve.
Il y a plusieurs écoles (maternelle, élémentaire, primaire et collège) à moins de 10 minutes à pied, tout comme deux crèches. Niveau transports, on trouve 16 gares à moins de 10 minutes en voiture. Des autoroutes et la nationale N124 sont accessibles à moins de 8 km. Il y a deux tennis, un bassin de natation, des commerces, deux boucheries-charcuteries, une épicerie et un bureau de poste dans les environs.
Elle est à vendre pour la somme de 405 000 €.Le prix comprend terrain + maison + frais de notaire + raccordements
N'hésitez pas à prendre contact avec notre agence pour obtenir de plus amples informations sur cette maison.
Annonce proposée par un Agent Commercial Partenaire.
Mentions légales
Terrain proposé par un partenaire foncier selon disponibilités et autorisation de publicité au prix de 166 000 €. Hors droit d'enregistrement et frais de notaire. Terrain + Maison proposés au prix de 405 000 € (Hors branchements et raccordements, papiers peints, peintures, revêtement de sol dans les chambres. Tarif modifiable sans préavis). Etiquette énergie : A. Différents modèles disponibles pour ce terrain. Assurances et garanties du constructeur (RC professionnelle, décennale, dommage ouvrage, garantie de remboursement de l'acompte, livraison à prix et délai convenu) : https://www.maisons-france-confort.fr/mentions-legales/. HEXAOM Services est enregistré auprès de l'ORIAS en tant que Courtier en financement, Niveau 1, sous le numéro 14001345.Agence Maisons France Confort de Tournefeuille (31170)
- Téléphone :
- 05 61 16 47 77
- Adressse :
- 114 chemin de Larramet
31170 Tournefeuille, France
