Maison neuve à
Tour-en-Bessin
(14400) Référence :
JS2322030_5
Prix du projet : Maison avec Terrain
prix 211 000 €
- 5 pièces
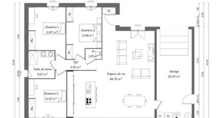
- 3 chambres
- Surface maison 95 m2
VENTE d'une maison de 5 pièces (95 m²) à Bayeux
MAISON 5 PIÈCES NEUVE - PROCHE DE CAEN
À vendre à 9 km de la Manche et à quelques kilomètres de Caen, nous vous proposons à Bayeux (14400), cette maison de 5 pièces de plain-pied de 95 m² et de 301 m² de terrain.
Elle comporte trois chambres, une cuisine et deux salles de bains. Cette maison est neuve.
On trouve tous les types d'établissements scolaires (de la maternelle au lycée) à moins de 10 minutes à pied, tout comme une structure d'accueil pour les enfants en bas âge. Niveau transports, il y a la gare Bayeux à quelques pas du bien. On trouve un accès à la nationale N13 à 3 km. On trouve une bibliothèque, des commerces, des boulangeries, un supermarché, des boucheries-charcuteries et une supérette dans les environs. Enfin, 2 marchés animent les environs.
Elle est proposée à l'achat pour 211 000 €.
Contactez notre agence (HUE Emilie : 06-29-81-46-66) pour plus de renseignements sur le bien, sur les démarches à suivre ou sur les modalités de vente.
Annonce proposée par un Agent Commercial Partenaire.
Mentions légales
Terrain proposé par un partenaire foncier selon disponibilités et autorisation de publicité au prix de 56 000 €. Hors droit d'enregistrement et frais de notaire. Maison proposée, avec un contrat de construction de maison individuelle, dans le cadre de la loi du 19/12/1990, au prix de 155 000 € (Hors branchements et raccordements, papiers peints, peintures, revêtement de sol dans les chambres, qui sont chiffrés dans les travaux qui restent à charge du client. Tarif modifiable sans préavis). Étiquette énergie : A. Différents modèles disponibles pour ce terrain. Assurances et garanties du constructeur comprises (RC professionnelle, décennale, dommage ouvrage).Agence Maisons France Confort de Bayeux (14400)
- Téléphone :
- 02 31 51 20 91
- Adressse :
- 2, rue Saint Loup
14400 Bayeux, France
