Maison neuve à
Tour-en-Bessin
(14400) Référence :
JS2322030_6
Prix du projet : Maison avec Terrain
prix 256 000 €
- 7 pièces
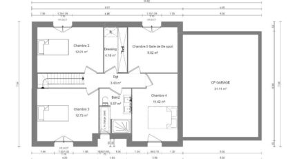
- 5 chambres
- Surface maison 120 m2
Bayeux : maison de 7 pièces (120 m²) à vendre
MAISON 7 PIÈCES NEUVE - PROCHE DE CAEN
En vente : située à 9 km de la Manche et à 26 km de Caen, notre agence Maisons France Confort Bayeux est heureuse de vous proposer cette maison de 7 pièces de 120 m² à Bayeux (14400). Son intérieur compte cinq chambres, une cuisine et deux salles de bains.
Le terrain de la propriété est de 301 m².
Cette maison comporte 2 niveaux. Elle est neuve.
Tous les types d'écoles (de la maternelle au lycée) sont implantés à moins de 10 minutes à pied, tout comme une crèche. Niveau transports, on trouve la gare Bayeux dans un rayon de 1 km. On trouve un accès à la nationale N13 à 3 km. Il y a une bibliothèque, des commerces, des boulangeries, un supermarché, trois épiceries et une supérette dans les environs. Enfin, 2 marchés animent le quartier.
Elle est à vendre pour la somme de 256 000 €.
Contactez Emilie HUE (tél : 06-29-81-46-66) pour tout renseignement sur la maison, sur les modalités de vente ou sur les démarches à suivre.
Annonce proposée par un Agent Commercial Partenaire.
Mentions légales
Terrain proposé par un partenaire foncier selon disponibilités et autorisation de publicité au prix de 56 000 €. Hors droit d'enregistrement et frais de notaire. Maison proposée, avec un contrat de construction de maison individuelle, dans le cadre de la loi du 19/12/1990, au prix de 200 000 € (Hors branchements et raccordements, papiers peints, peintures, revêtement de sol dans les chambres, qui sont chiffrés dans les travaux qui restent à charge du client. Tarif modifiable sans préavis). Étiquette énergie : A. Différents modèles disponibles pour ce terrain. Assurances et garanties du constructeur comprises (RC professionnelle, décennale, dommage ouvrage).Agence Maisons France Confort de Bayeux (14400)
- Téléphone :
- 02 31 51 20 91
- Adressse :
- 2, rue Saint Loup
14400 Bayeux, France
