Maison neuve à
Tournefeuille
(31170) Référence :
SP2448626_1
Prix du projet : Maison avec Terrain
prix 364 500 €
- 4 pièces
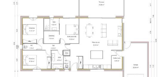
- 3 chambres
- Surface maison 90 m2
À Tournefeuille, à la limite de Lardenne, découvrez une belle opportunité pour concrétiser votre projet de construction dans un secteur particulièrement recherché aux portes de Toulouse.
Nous vous proposons cette agréable parcelle de terrain, via notre partenaire foncier, idéalement située avec un accès à la rocade à seulement 200 mètres. Vous profiterez d'un cadre résidentiel prisé, alliant tranquillité et proximité immédiate de la ville rose.
Sur ce terrain, nous vous proposons la réalisation d'une maison de plain-pied d'environ 90m² avec garage, pensée pour offrir un cadre de vie confortable, lumineux et parfaitement adapté à la vie de famille.
Projet terrain + maison : à partir de 364 000 €, incluant le terrain, la maison et les frais de notaire, hors frais annexes, hors raccordements, hors taxes et hors finitions.
Avec Maisons France Confort, vous bénéficiez d'un accompagnement complet et d'une construction de qualité, avec plus de 400 points de contrôle tout au long du chantier pour garantir la sérénité de votre projet.
Contactez l'agence Maisons France Confort de Tournefeuille pour en savoir plus.
Annonce proposée par un Agent Commercial Partenaire.
Mentions légales
Terrain proposé par un partenaire foncier selon disponibilités et autorisation de publicité au prix de 179 000 €. Hors droit d'enregistrement et frais de notaire. Terrain + Maison proposés au prix de 364 500 € (Hors branchements et raccordements, papiers peints, peintures, revêtement de sol dans les chambres. Tarif modifiable sans préavis). Etiquette énergie : A. Différents modèles disponibles pour ce terrain. Assurances et garanties du constructeur (RC professionnelle, décennale, dommage ouvrage, garantie de remboursement de l'acompte, livraison à prix et délai convenu) : https://www.maisons-france-confort.fr/mentions-legales/. HEXAOM Services est enregistré auprès de l'ORIAS en tant que Courtier en financement, Niveau 1, sous le numéro 14001345.Agence Maisons France Confort de Tournefeuille (31170)
- Téléphone :
- 05 61 16 47 77
- Adressse :
- 114 chemin de Larramet
31170 Tournefeuille, France
