Maison neuve à
Tournefeuille (31170) Référence : CC2463473_4

Prix du projet : Maison avec Terrain

prix 615 896 €

  • 5 pièces
  • 4 chambres
  • Surface maison 160 m2

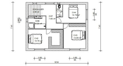
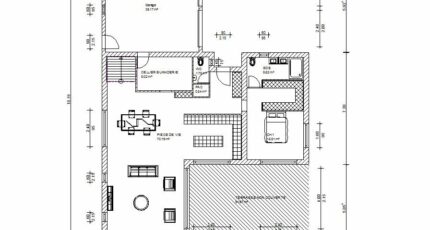
VENTE d'une maison de 5 pièces (160 m²) à Tournefeuille
MAISON 5 PIÈCES NEUVE
À vendre : venez découvrir cette maison de 5 pièces de 160 m² et de 2 700 m² de terrain à Tournefeuille (31170).
Cette maison compte 2 niveaux. Son intérieur propose quatre chambres, une cuisine et deux salles de bains. Cette maison est neuve.

Son prix de vente est de 615 896 €.
Prenez contact avec nous pour obtenir de plus amples renseignements sur la maison ou sur les modalités de vente.
Maisons France Confort Tournefeuille 05.61.16.47.77.

Annonce proposée par un Agent Commercial Partenaire.

Mentions légales

Terrain proposé par un partenaire foncier selon disponibilités et autorisation de publicité au prix de 290 000 €. Hors droit d'enregistrement et frais de notaire. Terrain + Maison proposés au prix de 615 896 € (Hors branchements et raccordements, papiers peints, peintures, revêtement de sol dans les chambres. Tarif modifiable sans préavis). Etiquette énergie : A. Différents modèles disponibles pour ce terrain. Assurances et garanties du constructeur (RC professionnelle, décennale, dommage ouvrage, garantie de remboursement de l'acompte, livraison à prix et délai convenu) : https://www.maisons-france-confort.fr/mentions-legales/. HEXAOM Services est enregistré auprès de l'ORIAS en tant que Courtier en financement, Niveau 1, sous le numéro 14001345.

Contactez l'agence de Tournefeuille

05 61 16 47 77

    * Champs obligatoires

    Vos informations sont traitées par HEXAOM et transmises à un conseiller commercial qui vous contactera afin de répondre à votre demande. Les plans et images présentés sur notre site sont la propriété d’HEXAOM et ne peuvent pas être reproduits sans son accord. Pour retrouver notre politique de protection des données personnelles et exercer vos droits conformément à la « loi informatique et liberté » cliquez-ici.