Maison neuve à
Trébabu
(29217) Référence :
ET2473409_3
Prix du projet : Maison avec Terrain
prix 461 000 €
- 5 pièces
- 4 chambres
- Surface maison 140 m2
🌿 À VENDRE - Terrain constructible de 800 m² à Trébabu, proche du Conquet
Découvrez ce magnifique terrain de 800 m², idéalement situé sur la commune de Trébabu, à seulement quelques minutes du Conquet.
Issu d'un petit lotissement intimiste, ce terrain bénéficie d'un cadre arboré, situé en impasse, offrant calme et sérénité pour votre futur projet de vie.
🏡 Notre proposition de maison sur ce terrain :
Maisons de l'Avenir vous propose une maison sur mesure, entièrement personnalisable selon vos besoins et votre mode de vie.
Cette habitation conjugue modernité, confort et performance énergétique.
Pensée dans le cadre du concept Bâti Activ, cette maison passive est étudiée pour profiter pleinement de l'ensoleillement naturel, favorisant ainsi des gains énergétiques notables au quotidien.
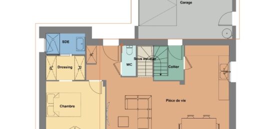
Cette maison contemporaine comprend :
4 chambres,
2 salles de bains,
un vaste espace de vie lumineux de plus de 55 m²,
un cellier/buanderie,
ainsi qu'un garage accolé à la maison.
Selon vos envies, elle peut être réalisée avec une façade bois chaleureuse ou une finition enduite plus traditionnelle.
💰 Prix de l'ensemble Terrain + Maison : 461 000 €
📞 Intéressé ?
Contactez Erwan TILLY - Maisons de l'Avenir pour obtenir plus d'informations, organiser une visite du terrain et concevoir ensemble votre futur projet sur mesure.
Mentions légales
Terrain proposé par un partenaire foncier selon disponibilités et autorisation de publicité au prix de 136 000 €. Hors droit d'enregistrement et frais de notaire. Terrain + Maison proposés au prix de 461 000 € (Hors branchements et raccordements, papiers peints, peintures, revêtement de sol dans les chambres. Tarif modifiable sans préavis). Etiquette énergie : A. Différents modèles disponibles pour ce terrain. Assurances et garanties du constructeur (RC professionnelle, décennale, dommage ouvrage, garantie de remboursement de l'acompte, livraison à prix et délai convenu) : https://www.maisonsdelavenir.com/mentions-legales/.Agence Maisons de l'Avenir de Guipavas (29490)
- Téléphone :
- 02 98 03 90 90
- Adressse :
- 10 Rue de Poul Ar Feunteun
29490 Guipavas, France
