Maison neuve à
Tréméven
(29300) Référence :
ML2480829_1
Prix du projet : Maison avec Terrain
prix 433 600 €
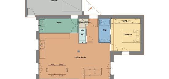
- 5 pièces
- 4 chambres
- Surface maison 140 m2
Voici une version optimisée de votre annonce pour Tréméven, conçue pour transformer ce grand terrain et cette maison spacieuse en un véritable coup de coeur, tout en respectant vos consignes de confidentialité et de personnalisation.
Tréméven : Votre Maison d'Exception de 140 m² sur 2 340 m² de Terrain
Un cadre de vie grandiose entre nature et dynamisme
Découvrez l'alliance parfaite entre espace et modernité. Dans un secteur recherché, à proximité immédiate de Lorient et des plaisirs du littoral, nous vous proposons une propriété rare. Établie sur un terrain d'exception de plus de 2 300 m², cette future réalisation est une invitation à la sérénité au coeur d'un environnement privilégié.
Les atouts majeurs de ce projet :
Volumes généreux : Une maison neuve à étage de 140 m², conçue pour offrir confort et indépendance à toute la famille.
Espace nuit complet : Quatre chambres spacieuses et deux salles de bains pour une organisation fluide.
Terrain d'envergure : Une emprise foncière rare sur le marché, idéale pour vos projets de jardin paysager ou d'aménagements extérieurs.
Vie locale facilitée : Accès immédiat à la vie scolaire (écoles accessibles à pied) et aux services de la commune (bibliothèque, supérette).
Mobilité stratégique : Proximité immédiate des axes de transport majeurs et des infrastructures ferroviaires pour vos déplacements quotidiens.
Loisirs : Un accès facilité aux plages et à l'océan Atlantique pour vos moments de détente.
Un projet 100 % sur mesure avec Maisons de l'Avenir Quimper
Chez Maisons de l'Avenir Quimper, nous ne construisons pas de maisons standards. Ce projet de 5 pièces est une base de réflexion que nous modelons selon vos envies et votre budget.
De l'orientation de vos pièces de vie pour une luminosité maximale à l'agencement intérieur, nous créons un habitat entièrement personnalisé. Notre expertise vous garantit une maison qui reflète votre identité, avec des prestations de qualité adaptées à votre mode de vie.
Prix du proje
Mentions légales
Terrain proposé par un partenaire foncier selon disponibilités et autorisation de publicité au prix de 96 300 €. Hors droit d'enregistrement et frais de notaire. Terrain + Maison proposés au prix de 433 600 € (Hors branchements et raccordements, papiers peints, peintures, revêtement de sol dans les chambres. Tarif modifiable sans préavis). Etiquette énergie : A. Différents modèles disponibles pour ce terrain. Assurances et garanties du constructeur (RC professionnelle, décennale, dommage ouvrage, garantie de remboursement de l'acompte, livraison à prix et délai convenu) : https://www.maisonsdelavenir.com/mentions-legales/.Agence Maisons de l'Avenir de Quimper (29000)
- Téléphone :
- 02 98 54 75 20
- Adressse :
- 3, chemin de Gwaremm Ar Wern
29000 Quimper, France