Maison neuve à
Trois-Palis
(16730) Référence :
AR2435404_2
Prix du projet : Maison avec Terrain
prix 286 000 €
- 5 pièces
- 3 chambres
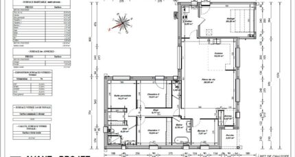
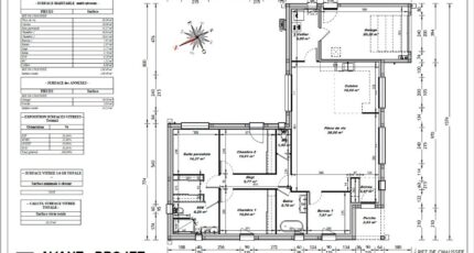
- Surface maison 120 m2
VENTE d'une maison de 5 pièces (120 m²) à Trois-Palis
MAISON 5 PIÈCES NEUVE - PROCHE D'ANGOULÊME
À vendre : localisée à quelques kilomètres d'Angoulême, votre agence Bermax Construction Saint-Yrieix-sur-Charente est ravie de vous présenter cette maison de 5 pièces de plain-pied de 120 m² à Trois-Palis (16730). Son intérieur compte trois chambres, une cuisine et deux salles de bains.
Le terrain de cette maison s'étend sur 501 m².
La maison est neuve.
L'École Primaire Georges Brassens est implantée à moins de 10 minutes à pied. Côté transports en commun, il y a deux gares (Angoulême et Châteauneuf-sur-Charente) à moins de 10 minutes en voiture.
Elle est proposée à l'achat pour 286 000 €.
Contactez notre agence (RICOME Aurélie : 05-45-95-10-05) pour plus de renseignements sur cette maison, sur les modalités de vente ou sur les démarches à suivre. Donnez vie à vos projets immobiliers avec Bermax Construction Saint-Yrieix-sur-Charente.
Mentions légales
Terrain proposé par un partenaire foncier selon disponibilités et autorisation de publicité au prix de 39 000 €. Hors droit d'enregistrement et frais de notaire. Terrain + Maison proposés au prix de 286 000 € (Hors branchements et raccordements, papiers peints, peintures, revêtement de sol dans les chambres. Tarif modifiable sans préavis). Etiquette énergie : A. Différents modèles disponibles pour ce terrain. Assurances et garanties du constructeur (RC professionnelle, décennale, dommage ouvrage, garantie de remboursement de l'acompte, livraison à prix et délai convenu) : https://www.bermax-constructions.fr/mentions-legales/.Agence Bermax de Saint-Yrieix-sur-Charente (16710)
- Téléphone :
- 05 45 95 10 05
- Adressse :
- 267 Route de Saint Jean d'Angély
16710 Saint-Yrieix-sur-Charente, France
