Maison neuve à
Vallon-Pont-d'Arc
(07150) Référence :
CB2438325_3
Prix du projet : Maison avec Terrain
prix 293 700 €
- 4 pièces
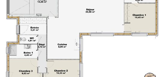
- 3 chambres
- Surface maison 110 m2
🏠 Une belle maison contemporaine aux volumes optimisés
Découvrez ce projet de maison moderne et fonctionnelle, pensée pour offrir confort, luminosité et agencement intelligent.
✨ Une organisation idéale des espaces
Au coeur de la maison, une grande pièce de vie d'environ 50 m², lumineuse et ouverte, regroupe la cuisine, le séjour et la salle à manger.
De part et d'autre de cet espace central :
Un coin nuit enfants, composé de deux chambres et d'une salle de bain,
Une suite parentale avec salle d'eau privative, dressing, et WC indépendant.
🔧 Des prestations modernes et de qualité
Chauffage par pompe à chaleur gainable pour un confort thermique optimal,
Menuiseries gris anthracite avec volets roulants motorisés pour une touche résolument contemporaine.
✅ La sécurité MAISONS FRANCE CONFORT
Avec MAISONS FRANCE CONFORT, leader de la construction de maisons individuelles, vous bénéficiez de garanties solides :
✔️ Garantie de prix
✔️ Garantie de délais
✔️ Garantie de livraison
✔️ Assurance dommage-ouvrage incluse
✔️ Garanties biennale, décennale et de parfait achèvement
🛠️ Des plans 100 % personnalisables
Tous nos modèles sont adaptables à vos envies, à votre style de vie et aux spécificités de votre terrain.
📞 Pour plus de renseignements ou un devis personnalisé, contactez Caroline au 06 29 37 31 44.
Mentions légales
Terrain proposé par un partenaire foncier selon disponibilités et autorisation de publicité au prix de 77 000 €. Hors droit d'enregistrement et frais de notaire. Terrain + Maison proposés au prix de 293 700 € (Hors branchements et raccordements, papiers peints, peintures, revêtement de sol dans les chambres. Tarif modifiable sans préavis). Etiquette énergie : A. Différents modèles disponibles pour ce terrain. Assurances et garanties du constructeur (RC professionnelle, décennale, dommage ouvrage, garantie de remboursement de l'acompte, livraison à prix et délai convenu) : https://www.maisons-france-confort.fr/mentions-legales/. HEXAOM Services est enregistré auprès de l'ORIAS en tant que Courtier en financement, Niveau 1, sous le numéro 14001345.Agence Maisons France Confort de Vallon-Pont-d'Arc (07150)
- Téléphone :
- 04 75 38 51 85
- Adressse :
- 77 boulevard Peshaire Alison
07150 Vallon-Pont-d'Arc, France
