Maison neuve à
Vallon-Pont-d'Arc
(07150) Référence :
MD2458648_3
Prix du projet : Maison avec Terrain
prix 349 500 €
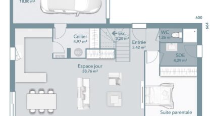
- 6 pièces
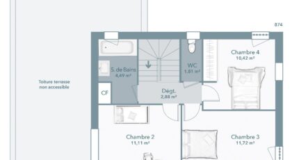
- 4 chambres
- Surface maison 110 m2
Terrain proposé dans le cadre d'un projet de construction avec Maisons France Confort
Une maison pensée pour votre famille !
Maison France Confort vous propose un projet clé en main à VALLON PONT D'ARC sur un terrain de 1018 m2.
Avec ses beaux volumes, sa cuisine ouverte et ses chambres confortables, cette maison de 110 m2 répond aux besoins du quotidien tout en offrant un espace agréable à vivre.
Budget estimé pour ce projet (terrain + maison) : 349 500 € TTC (Frais de notaire, raccordements et adaptations au sol non inclus.).
Proposé en contrat de construction de maison individuelle (CCMI), incluant toutes les garanties légales : garantie de livraison, garantie de parfait achèvement, garantie décennale, assurance dommages-ouvrage, prix ferme et définitif.
Pour plus d'informations ou pour convenir d'un rendez-vous découverte, contactez :
Mélanie DEFFOBIS - Maison France Confort, Agence de Vallon Pont d'Arc
06 46 26 20 66
Mentions légales
Terrain proposé par un partenaire foncier selon disponibilités et autorisation de publicité au prix de 89 000 €. Hors droit d'enregistrement et frais de notaire. Terrain + Maison proposés au prix de 349 500 € (Hors branchements et raccordements, papiers peints, peintures, revêtement de sol dans les chambres. Tarif modifiable sans préavis). Etiquette énergie : A. Différents modèles disponibles pour ce terrain. Assurances et garanties du constructeur (RC professionnelle, décennale, dommage ouvrage, garantie de remboursement de l'acompte, livraison à prix et délai convenu) : https://www.maisons-france-confort.fr/mentions-legales/. HEXAOM Services est enregistré auprès de l'ORIAS en tant que Courtier en financement, Niveau 1, sous le numéro 14001345.Agence Maisons France Confort de Vallon-Pont-d'Arc (07150)
- Téléphone :
- 04 75 38 51 85
- Adressse :
- 77 boulevard Peshaire Alison
07150 Vallon-Pont-d'Arc, France
