Maison neuve à
Vaucelles
(14400) Référence :
EH2301224_5
Prix du projet : Maison avec Terrain
prix 262 000 €
- 7 pièces
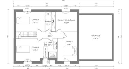
- 5 chambres
- Surface maison 120 m2
Maison de 7 pièces (120 m²) en vente à Vaucelles
IDÉALEMENT SITUÉE - MAISON 7 PIÈCES NEUVE
En vente à 7 km de la Manche et à 28 km de Caen, Maisons France Confort Bayeux vous propose cette maison de 7 pièces de 120 m² et de 351 m² de terrain idéalement située dans Vaucelles (14400).
Cette maison compte 2 niveaux. Elle propose cinq chambres, une cuisine et deux salles de bains. La maison est neuve.
Cette propriété se situe dans un quartier prisé. Niveau transports, on trouve la gare Bayeux à moins de 10 minutes en voiture. On trouve un accès à la nationale N13 à 2 km. Il y a un supermarché et un commerce à proximité du logement.
Son prix de vente est de 262 000 €.
Prenez contact avec notre agence (HUE Emilie : 06-29-81-46-66) pour toute information sur la maison. Maisons France Confort Bayeux vous accompagne dans toutes vos démarches et à toutes les étapes de votre projet.
Annonce proposée par un Agent Commercial Partenaire.
Mentions légales
Terrain proposé par un partenaire foncier selon disponibilités et autorisation de publicité au prix de 62 000 €. Hors droit d'enregistrement et frais de notaire. Maison proposée, avec un contrat de construction de maison individuelle, dans le cadre de la loi du 19/12/1990, au prix de 200 000 € (Hors branchements et raccordements, papiers peints, peintures, revêtement de sol dans les chambres, qui sont chiffrés dans les travaux qui restent à charge du client. Tarif modifiable sans préavis). Étiquette énergie : A. Différents modèles disponibles pour ce terrain. Assurances et garanties du constructeur comprises (RC professionnelle, décennale, dommage ouvrage).Agence Maisons France Confort de Bayeux (14400)
- Téléphone :
- 02 31 51 20 91
- Adressse :
- 2, rue Saint Loup
14400 Bayeux, France
