Maison neuve à
Vaucelles
(14400) Référence :
EH2301224_9
Prix du projet : Maison avec Terrain
prix 227 000 €
- 6 pièces
- 4 chambres
- Surface maison 110 m2
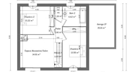
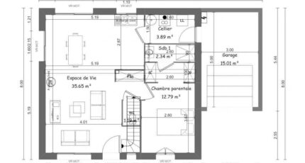
Maison F6 (110 m²) en vente à Vaucelles
IDÉALEMENT SITUÉE - MAISON 6 PIÈCES NEUVE
À vendre à 7 km de la Manche et à 28 km de Caen, nous vous proposons cette maison de 6 pièces de 110 m² idéalement située dans Vaucelles (14400).
C'est une maison de 2 niveaux. Elle se divise en quatre chambres, une cuisine et deux salles de bains. Cette maison est neuve.
Le terrain du bien est de 351 m².
La maison se situe dans un quartier recherché. Niveau transports, il y a la gare Bayeux à moins de 10 minutes en voiture. La nationale N13 est accessible à 2 km. On trouve un supermarché et un commerce à proximité.
Elle est à vendre pour la somme de 227 000 €.
N'hésitez pas à prendre contact avec Emilie HUE (tél : 06-29-81-46-66) pour toute information sur la maison et sur les modalités de vente. Maisons France Confort Bayeux est là pour vous accompagner dans toutes vos démarches.
Annonce proposée par un Agent Commercial Partenaire.
Mentions légales
Terrain proposé par un partenaire foncier selon disponibilités et autorisation de publicité au prix de 62 000 €. Hors droit d'enregistrement et frais de notaire. Maison proposée, avec un contrat de construction de maison individuelle, dans le cadre de la loi du 19/12/1990, au prix de 165 000 € (Hors branchements et raccordements, papiers peints, peintures, revêtement de sol dans les chambres, qui sont chiffrés dans les travaux qui restent à charge du client. Tarif modifiable sans préavis). Étiquette énergie : A. Différents modèles disponibles pour ce terrain. Assurances et garanties du constructeur comprises (RC professionnelle, décennale, dommage ouvrage).Agence Maisons France Confort de Bayeux (14400)
- Téléphone :
- 02 31 51 20 91
- Adressse :
- 2, rue Saint Loup
14400 Bayeux, France
