Maison neuve à
Vaucelles
(14400) Référence :
JS2485109_5
Prix du projet : Maison avec Terrain
prix 219 000 €
- 5 pièces
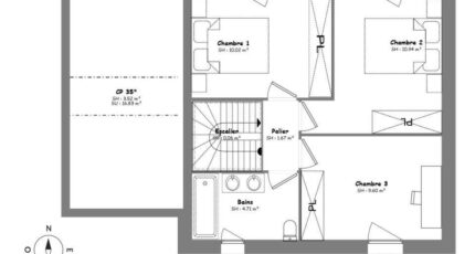
- 3 chambres
- Surface maison 85 m2
MAISON NEUVE 5 PIÈCES DE 85 M² IDÉALEMENT SITUÉE À VAUCELLES
PRÉSENTATION DU BIEN
Cette maison à construire de 85 m² habitables est implantée sur un terrain de 414 m² à Vaucelles, dans un secteur idéalement situé.
Vous disposerez de 3 chambres, d'une cuisine et d'une salle de bains avec baignoire. Ce bien vous offre une surface de vie totale de 85 m².
La maison comprend deux niveaux pour un aménagement optimal des espaces.
Le terrain de 414 m² vous offre un espace extérieur appréciable pour réaliser vos projets.
ENVIRONNEMENT
Vaucelles est une commune située à 28 km de Caen, offrant un cadre de vie agréable.
La nationale N13 se trouve à 2 km, facilitant les déplacements. La gare de Bayeux est accessible à 3,5 km. Des commerces sont également présents aux alentours.
NOUS CONTACTER
Cette maison est proposée à la vente au prix de 219 000 euros.
Pour toute information complémentaire ou pour organiser une visite, contactez Emilie HUE de Maisons France Confort Bayeux au 06-29-81-46-66.
Annonce proposée par un Agent Commercial Partenaire.
Mentions légales
Terrain proposé par un partenaire foncier selon disponibilités et autorisation de publicité au prix de 64 000 €. Hors droit d'enregistrement et frais de notaire. Terrain + Maison proposés au prix de 219 000 € (Hors branchements et raccordements, papiers peints, peintures, revêtement de sol dans les chambres. Tarif modifiable sans préavis). Etiquette énergie : A. Différents modèles disponibles pour ce terrain. Assurances et garanties du constructeur (RC professionnelle, décennale, dommage ouvrage, garantie de remboursement de l'acompte, livraison à prix et délai convenu) : https://www.maisons-france-confort.fr/mentions-legales/. HEXAOM Services est enregistré auprès de l'ORIAS en tant que Courtier en financement, Niveau 1, sous le numéro 14001345.Agence Maisons France Confort de Bayeux (14400)
- Téléphone :
- 02 31 51 20 91
- Adressse :
- 2, rue Saint Loup
14400 Bayeux, France
