Maison neuve à
Vaudoy-en-Brie
(77141) Référence :
DC2485277_2
Prix du projet : Maison avec Terrain
prix 311 605 €
- 5 pièces
- 3 chambres
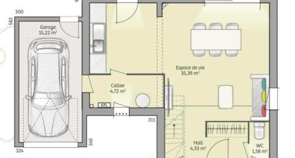
- Surface maison 90 m2
Vaudoy-en-Brie : maison de 5 pièces (90 m²) en vente
MAISON 5 PIÈCES NEUVE - PROCHE DE BUSSY-SAINT-GEORGES
À quelques kilomètres de Bussy-Saint-Georges, nous sommes ravis de vous proposer cette maison de 5 pièces de 90 m² et de 356 m² de terrain à Vaudoy-en-Brie (77141).
Cette maison comporte 2 niveaux. Son intérieur dispose de trois chambres, d'une cuisine et d'une salle de bains. Cette maison est neuve.
Il y a quatre établissements scolaires à moins de 10 minutes en voiture. On trouve des tennis, trois bibliothèques, des commerces, trois bureaux de poste, deux poissonneries et des épiceries à quelques minutes.
Son prix de vente est de 311 605 €.
Prenez contact avec notre agence (CORDIER David : 06-10-79-38-15) pour toute information sur la propriété ou sur les modalités de vente. Maisons France Confort Melun est là pour vous accompagner à toutes les étapes de votre projet.
Annonce proposée par un Agent Commercial Partenaire.
Mentions légales
Terrain proposé par un partenaire foncier selon disponibilités et autorisation de publicité au prix de 94 000 €. Hors droit d'enregistrement et frais de notaire. Terrain + Maison proposés au prix de 311 605 € (Hors branchements et raccordements, papiers peints, peintures, revêtement de sol dans les chambres. Tarif modifiable sans préavis). Etiquette énergie : A. Différents modèles disponibles pour ce terrain. Assurances et garanties du constructeur (RC professionnelle, décennale, dommage ouvrage, garantie de remboursement de l'acompte, livraison à prix et délai convenu) : https://www.maisons-france-confort.fr/mentions-legales/. HEXAOM Services est enregistré auprès de l'ORIAS en tant que Courtier en financement, Niveau 1, sous le numéro 14001345.Agence Maisons France Confort de Melun (77000)
- Téléphone :
- 01 64 14 43 20
- Adressse :
- 3 route de Nangis
77000 Melun, France