Maison neuve à
Vaulx-en-Velin
(69120) Référence :
KS2441234_3
Prix du projet : Maison avec Terrain
prix 345 000 €
- 5 pièces
- 4 chambres
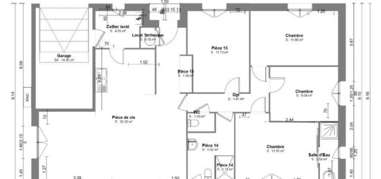
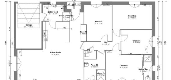
- Surface maison 95 m2
🏡 Vente Maison 5 pièces - 95 m² - Vaulx-en-Velin (69120)
Maison neuve sur 2 niveaux avec terrain de 453 m² - Proche de Lyon
📍 Localisation :
À Vaulx-en-Velin, à quelques minutes de Lyon, découvrez cette maison neuve de 5 pièces offrant confort et modernité dans un secteur calme et résidentiel, idéal pour une famille.
🏠 Description du bien :
Surface habitable : 95 m²
Terrain : 453 m²
Nombre de pièces : 5
Chambres : 4
Salles de bains : 2
Cuisine : à aménager selon vos envies
Niveaux : 2 étages
État : Neuf
Cette maison propose un espace de vie fonctionnel et lumineux, avec un jardin agréable pour profiter des beaux jours.
🧭 Environnement et commodités :
Écoles maternelles et élémentaires à moins de 10 minutes à pied
13 gares accessibles en moins de 10 minutes en voiture
Autoroute A42 à 1 km
À proximité : bibliothèque, commerces, supermarché, boulangeries, boucheries-charcuteries, supérette
Quartier dynamique avec 3 marchés hebdomadaires
💶 Prix de vente : 345 000 €
🎯 Opportunité à saisir :
Maison neuve, prête à accueillir votre famille, dans un cadre pratique et agréable, proche de toutes commodités et des transports. Une opportunité idéale pour les primo-accédants ou ceux qui souhaitent combiner confort, espace et proximité de Lyon.
📞 Contact :
Kevin SAOUTHI - Maisons France Confort Saint-Priest
📱 04-78-40-45-55
📍 Accompagnement complet pour concrétiser votre projet immobilier
Mentions légales
Terrain proposé par un partenaire foncier selon disponibilités et autorisation de publicité au prix de 145 000 €. Hors droit d'enregistrement et frais de notaire. Terrain + Maison proposés au prix de 345 000 € (Hors branchements et raccordements, papiers peints, peintures, revêtement de sol dans les chambres. Tarif modifiable sans préavis). Etiquette énergie : A. Différents modèles disponibles pour ce terrain. Assurances et garanties du constructeur (RC professionnelle, décennale, dommage ouvrage, garantie de remboursement de l'acompte, livraison à prix et délai convenu) : https://www.maisons-france-confort.fr/mentions-legales/. HEXAOM Services est enregistré auprès de l'ORIAS en tant que Courtier en financement, Niveau 1, sous le numéro 14001345.Agence Maisons France Confort de Saint-Priest (69800)
- Téléphone :
- 04 78 40 45 55
- Adressse :
- Cité de l'Environnement
69800 Saint-Priest, France
