Maison neuve à
Vaux-sur-Seulles
(14400) Référence :
JS2319754_5
Prix du projet : Maison avec Terrain
prix 256 000 €
- 7 pièces
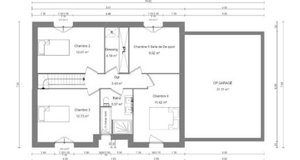
- 5 chambres
- Surface maison 120 m2
Maison F7 (120 m²) à vendre à Bayeux
PROCHE DE CAEN - MAISON 7 PIÈCES NEUVE
À vendre : localisée à 9 km de la Manche et à 26 km de Caen, venez découvrir à Bayeux (14400), cette maison de 7 pièces de 120 m² et de 301 m² de terrain. Elle compte cinq chambres, une cuisine et deux salles de bains.
Cette maison possède 2 niveaux. Elle est neuve.
Des écoles de tous niveaux sont implantées à moins de 10 minutes à pied, tout comme une structure d'accueil pour les tout-petits. Niveau transports en commun, on trouve la gare Bayeux à proximité. On trouve un accès à la nationale N13 à 3 km. Il y a une bibliothèque, des commerces, des boulangeries, un supermarché, trois épiceries et un bureau de poste dans les environs. Enfin, 2 marchés animent le quartier.
Son prix de vente est de 256 000 €.
Contactez notre agence (HUE Emilie : 06-29-81-46-66) pour obtenir de plus amples renseignements sur cette maison. Faites de vos projets immobiliers une réalité avec Maisons France Confort Bayeux.
Annonce proposée par un Agent Commercial Partenaire.
Mentions légales
Terrain proposé par un partenaire foncier selon disponibilités et autorisation de publicité au prix de 56 000 €. Hors droit d'enregistrement et frais de notaire. Maison proposée, avec un contrat de construction de maison individuelle, dans le cadre de la loi du 19/12/1990, au prix de 200 000 € (Hors branchements et raccordements, papiers peints, peintures, revêtement de sol dans les chambres, qui sont chiffrés dans les travaux qui restent à charge du client. Tarif modifiable sans préavis). Étiquette énergie : A. Différents modèles disponibles pour ce terrain. Assurances et garanties du constructeur comprises (RC professionnelle, décennale, dommage ouvrage).Agence Maisons France Confort de Bayeux (14400)
- Téléphone :
- 02 31 51 20 91
- Adressse :
- 2, rue Saint Loup
14400 Bayeux, France
