Maison neuve à
Vaux-sur-Seulles
(14400) Référence :
JS2319755_10
Prix du projet : Maison avec Terrain
prix 201 000 €
- 5 pièces
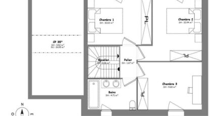
- 3 chambres
- Surface maison 85 m2
VENTE : maison de 5 pièces (85 m²) à Bayeux
MAISON 5 PIÈCES NEUVE - PROCHE DE CAEN
À 9 km de la Manche et à quelques kilomètres de Caen, Maisons France Confort Bayeux vous présente en vente à Bayeux (14400), cette maison de 5 pièces de 85 m².
Cette maison compte 2 niveaux. Elle se divise en trois chambres, une cuisine et une salle de bains. Cette maison est neuve.
Le terrain du bien est de 301 m².
Il y a tous les types d'établissements scolaires à moins de 10 minutes à pied, tout comme une crèche. Côté transports en commun, on trouve la gare Bayeux dans les alentours. Il y a un accès à la nationale N13 à 3 km. Il y a une bibliothèque, des commerces, des boulangeries, un supermarché, trois épiceries et une supérette à quelques minutes du logement. 2 marchés animent les environs.
Il est proposé à l'achat pour 201 000 €.
Contactez notre agence (Emilie HUE : 06-29-81-46-66) pour tout renseignement sur la maison ou sur les modalités de vente. Faites de vos projets immobiliers une réalité avec Maisons France Confort Bayeux.
Annonce proposée par un Agent Commercial Partenaire.
Mentions légales
Terrain proposé par un partenaire foncier selon disponibilités et autorisation de publicité au prix de 56 000 €. Hors droit d'enregistrement et frais de notaire. Terrain + Maison proposés au prix de 145 000 € (Hors branchements et raccordements, papiers peints, peintures, revêtement de sol dans les chambres. Tarif modifiable sans préavis). Etiquette énergie : A. Différents modèles disponibles pour ce terrain. Assurances et garanties du constructeur (RC professionnelle, décennale, dommage ouvrage, garantie de remboursement de l'acompte, livraison à prix et délai convenu) : https://www.maisons-france-confort.fr/mentions-legales/. HEXAOM Services est enregistré auprès de l'ORIAS en tant que Courtier en financement, Niveau 1, sous le numéro 14001345.Agence Maisons France Confort de Bayeux (14400)
- Téléphone :
- 02 31 51 20 91
- Adressse :
- 2, rue Saint Loup
14400 Bayeux, France
