Maison neuve à
Vendres (34350) Référence : LR2491583_3

Prix du projet : Maison avec Terrain

prix 225 000 €

  • 4 pièces
  • 3 chambres
  • Surface maison 81 m2

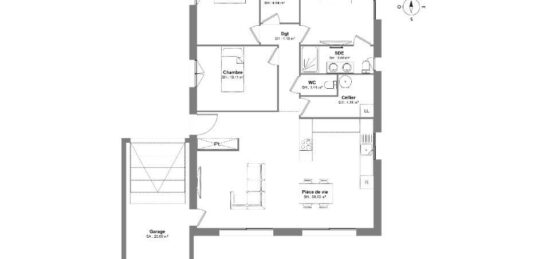
VENTE d'une maison de 4 pièces (81 m²) à Vendres
EMPLACEMENT PRIVILÉGIÉ - MAISON 4 PIÈCES NEUVE
En vente : située à 6 km de la côte méditerranéenne et à 10 km de Béziers, notre agence Maisons France Confort Béziers est ravie de vous présenter cette maison de 4 pièces de plain-pied de 81 m² et de 281 m² de terrain, bénéficiant d'un emplacement privilégié dans Vendres (34350). Conçue de plain-pied, elle compte trois chambres, une cuisine et une salle de bains.
La maison est neuve.
Cette maison se trouve dans un secteur recherché. Il y a le Collège Françoise Giroud et l'École Primaire Lucie Aubrac à moins de 10 minutes à pied. Niveau transports, on trouve la gare Béziers à moins de 10 minutes en voiture. Les autoroutes A9 et A75 sont accessibles à moins de 9 km. Il y a un tennis, un bureau de poste et deux épiceries à quelques minutes à peine.
Son prix de vente est de 225 000 €.
Contactez Léo RENARD (06-13-67-09-81) pour toute information sur la maison. Maisons France Confort Béziers est là pour vous accompagner à toutes les étapes de l'achat.

Mentions légales

Terrain proposé par un partenaire foncier selon disponibilités et autorisation de publicité au prix de 94 000 €. Hors droit d'enregistrement et frais de notaire. Terrain + Maison proposés au prix de 225 000 € (Hors branchements et raccordements, papiers peints, peintures, revêtement de sol dans les chambres. Tarif modifiable sans préavis). Etiquette énergie : A. Différents modèles disponibles pour ce terrain. Assurances et garanties du constructeur (RC professionnelle, décennale, dommage ouvrage, garantie de remboursement de l'acompte, livraison à prix et délai convenu) : https://www.maisons-france-confort.fr/mentions-legales/. HEXAOM Services est enregistré auprès de l'ORIAS en tant que Courtier en financement, Niveau 1, sous le numéro 14001345.

Contactez l'agence de Béziers

04 67 00 85 60

    * Champs obligatoires

    Vos informations sont traitées par HEXAOM et transmises à un conseiller commercial qui vous contactera afin de répondre à votre demande. Les plans et images présentés sur notre site sont la propriété d’HEXAOM et ne peuvent pas être reproduits sans son accord. Pour retrouver notre politique de protection des données personnelles et exercer vos droits conformément à la « loi informatique et liberté » cliquez-ici.