Maison neuve à
Vénissieux (69200) Référence : KS2379810_2

Prix du projet : Maison avec Terrain

prix 398 368 €

  • 6 pièces
  • 5 chambres
  • Surface maison 120 m2

À Vénissieux - Superbe maison neuve de 6 pièces, moderne et familiale
Prix de vente :398368 €

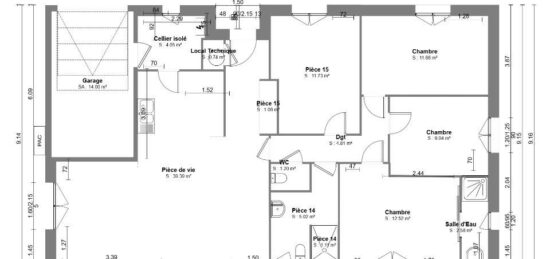
Maisons France Confort Saint-Priest vous propose cette magnifique maison neuve de 120 m² située à Vénissieux (69200), au coeur d'un quartier dynamique et recherché.

Une maison spacieuse et lumineuse
Cette maison à étage de 6 pièces se compose de :

Cinq belles chambres, idéales pour accueillir toute la famille

Une cuisine moderne, à aménager selon vos envies

Deux salles de bains, fonctionnelles et élégantes

Édifiée sur un terrain de 410 m², cette maison offre un cadre de vie confortable, avec de beaux volumes et une distribution optimisée des espaces.

Un environnement pratique et agréable
Tout est à proximité :

Écoles maternelle, élémentaire et lycée accessibles en moins de 10 minutes à pied

Nombreux commerces de proximité : boulangeries, épiceries, boucheries, supérette

Équipements de loisirs : piscine, bibliothèque, courts de tennis

Marché du Centre-Ville, véritable coeur vivant du quartier

Une excellente accessibilité
Gare de Vénissieux à quelques minutes

Accès rapide à la nationale N346 et aux autoroutes (moins de 10 km)

📞 Pour plus d'informations, contactez :
Kevin SAOUTHI - 04 78 40 45 55
📍 Maisons France Confort - Saint-Priest

Offrez-vous un cadre de vie idéal dans une maison moderne et confortable.
Construisez votre avenir dès aujourd'hui.

Mentions légales

Terrain proposé par un partenaire foncier selon disponibilités et autorisation de publicité au prix de 195 000 €. Hors droit d'enregistrement et frais de notaire. Terrain + Maison proposés au prix de 398 368 € (Hors branchements et raccordements, papiers peints, peintures, revêtement de sol dans les chambres. Tarif modifiable sans préavis). Etiquette énergie : A. Différents modèles disponibles pour ce terrain. Assurances et garanties du constructeur (RC professionnelle, décennale, dommage ouvrage, garantie de remboursement de l'acompte, livraison à prix et délai convenu) : https://www.maisons-france-confort.fr/mentions-legales/. HEXAOM Services est enregistré auprès de l'ORIAS en tant que Courtier en financement, Niveau 1, sous le numéro 14001345.

Contactez l'agence de Saint-Priest

04 78 40 45 55

    * Champs obligatoires

    Vos informations sont traitées par HEXAOM et transmises à un conseiller commercial qui vous contactera afin de répondre à votre demande. Les plans et images présentés sur notre site sont la propriété d’HEXAOM et ne peuvent pas être reproduits sans son accord. Pour retrouver notre politique de protection des données personnelles et exercer vos droits conformément à la « loi informatique et liberté » cliquez-ici.