Maison neuve à
Vernouillet (78540) Référence : MB2481540_3

Prix du projet : Maison avec Terrain

prix 230 890 €

  • 6 pièces
  • 4 chambres
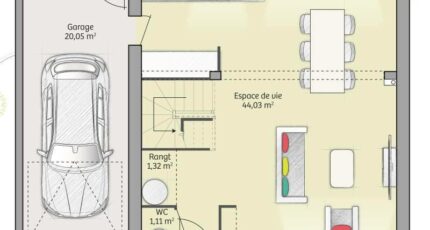
  • Surface maison 91 m2

VENTE d'une maison F6 (91 m²) à Vernouillet
EMPLACEMENT PRIVILÉGIÉ - MAISON 6 PIÈCES NEUVE
Au pied de la gare de Vernouillet-Verneuil (Paris à 25 min par le Transilien J), ayez le coup de coeur pour cette maison de 6 pièces de 91 m² en vente bénéficiant d'un emplacement privilégié dans Vernouillet (78540).
Cette maison comporte 2 niveaux. Elle dispose de quatre chambres, d'une cuisine et d'une salle de bains. Cette maison est neuve.
Le terrain de la propriété est de 260 m².
Cette maison se situe dans un secteur prisé. Plusieurs établissements scolaires (maternelle, élémentaire, primaire et collège) se trouvent à moins de 10 minutes à pied. Niveau transports, il y a la gare Vernouillet-Verneuil à proximité. On trouve deux tennis, des commerces, deux épiceries, un bureau de poste, une boucherie-charcuterie et trois supérettes à quelques minutes. Le marché Centre-Ville anime les environs.
Elle est proposée à l'achat pour 230 890 €.
Contactez Mickael BESNARD (tél : 06-15-50-56-87) pour obtenir de plus amples renseignements sur la maison ou sur les modalités de vente.

Annonce proposée par un Agent Commercial Partenaire.

Mentions légales

Terrain proposé par un partenaire foncier selon disponibilités et autorisation de publicité au prix de 65 900 €. Hors droit d'enregistrement et frais de notaire. Terrain + Maison proposés au prix de 230 890 € (Hors branchements et raccordements, papiers peints, peintures, revêtement de sol dans les chambres. Tarif modifiable sans préavis). Etiquette énergie : A. Différents modèles disponibles pour ce terrain. Assurances et garanties du constructeur (RC professionnelle, décennale, dommage ouvrage, garantie de remboursement de l'acompte, livraison à prix et délai convenu) : https://www.maisons-france-confort.fr/mentions-legales/. HEXAOM Services est enregistré auprès de l'ORIAS en tant que Courtier en financement, Niveau 1, sous le numéro 14001345.

Contactez l'agence de Vernon

02 32 51 45 05

    * Champs obligatoires

    Vos informations sont traitées par HEXAOM et transmises à un conseiller commercial qui vous contactera afin de répondre à votre demande. Les plans et images présentés sur notre site sont la propriété d’HEXAOM et ne peuvent pas être reproduits sans son accord. Pour retrouver notre politique de protection des données personnelles et exercer vos droits conformément à la « loi informatique et liberté » cliquez-ici.