Maison neuve à
Vertou
(44120) Référence :
TD2449287_1
Prix du projet : Maison avec Terrain
prix 285 000 €
- 4 pièces
- 3 chambres
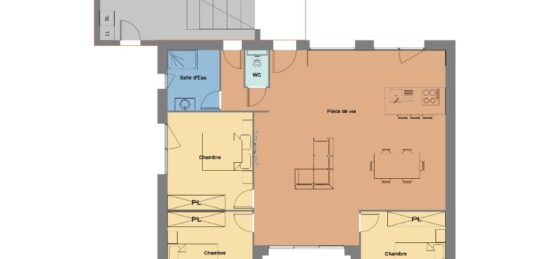
- Surface maison 70 m2
Maison de 4 pièces (70 m²) à vendre à Vertou
MAISON 4 PIÈCES NEUVE
En vente : située à 31 km de la côte atlantique, à Vertou (44120), venez découvrir cette maison de 4 pièces de 70 m² et de 290 m² de terrain. Elle comporte trois chambres, une cuisine et une salle de bains.
Il s'agit d'une maison de 2 niveaux.
Elle est à vendre pour la somme de 285 000 €.
Prenez contact avec Thibault DUPONT pour toute question sur la maison. Maisons de l'Avenir Rezé est là pour vous accompagner dans tous vos projets immobiliers.
Mentions légales
Terrain proposé par un partenaire foncier selon disponibilités et autorisation de publicité au prix de 128 000 €. Hors droit d'enregistrement et frais de notaire. Terrain + Maison proposés au prix de 285 000 € (Hors branchements et raccordements, papiers peints, peintures, revêtement de sol dans les chambres. Tarif modifiable sans préavis). Etiquette énergie : A. Différents modèles disponibles pour ce terrain. Assurances et garanties du constructeur (RC professionnelle, décennale, dommage ouvrage, garantie de remboursement de l'acompte, livraison à prix et délai convenu) : https://www.maisonsdelavenir.com/mentions-legales/.Agence Maisons de l'Avenir de Rezé (44400)
- Téléphone :
- 02 40 26 28 28
- Adressse :
- 56, rue de la butte de Praud
44400 Rezé, France
