Maison neuve à
Tourny
(27510) Référence :
AL2404019_1
Prix du projet : Maison avec Terrain
prix 229 780 €
- 5 pièces
- 4 chambres
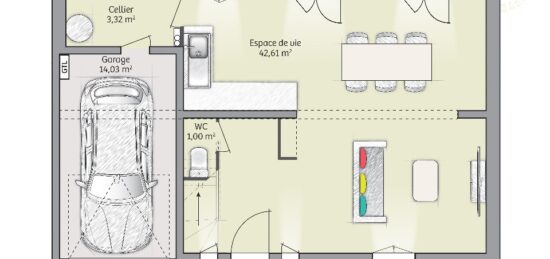
- Surface maison 101 m2
VENTE d'une maison de 5 pièces (101 m²) à Vexin Sur Epte
PROCHE DE MANTES-LA-JOLIE - MAISON 5 PIÈCES NEUVE
À deux pas de Mantes-la-Jolie, à vendre à Vexin Sur Epte (27510), nous sommes ravis de vous présenter cette maison de 5 pièces de plain-pied de 101 m².
Elle offre quatre chambres, une cuisine et une salle de bains. Cette maison est neuve.
Le terrain de la propriété s'étend sur 1 000 m².
Il y a tous les types d'écoles (maternelle, élémentaire et secondaire) à moins de 10 minutes en voiture, tout comme deux crèches à moins de 10 minutes à pied. On trouve des tennis, des commerces, des boulangeries, trois supermarchés, des boucheries-charcuteries et quatre épiceries à proximité.
Elle est à vendre pour la somme de 229 780 €.
N'hésitez pas à prendre contact avec Maisons France Confort Boos 02 35 80 66 62 / 06 15 24 16 98 pour toute question sur la maison ou sur les modalités de vente.
Annonce proposée par un Agent Commercial Partenaire.
Mentions légales
Terrain proposé par un partenaire foncier selon disponibilités et autorisation de publicité au prix de 73 000 €. Hors droit d'enregistrement et frais de notaire. Terrain + Maison proposés au prix de 229 780 € (Hors branchements et raccordements, papiers peints, peintures, revêtement de sol dans les chambres. Tarif modifiable sans préavis). Etiquette énergie : A. Différents modèles disponibles pour ce terrain. Assurances et garanties du constructeur (RC professionnelle, décennale, dommage ouvrage, garantie de remboursement de l'acompte, livraison à prix et délai convenu) : https://www.maisons-france-confort.fr/mentions-legales/. HEXAOM Services est enregistré auprès de l'ORIAS en tant que Courtier en financement, Niveau 1, sous le numéro 14001345.Agence Maisons France Confort de Boos (76520)
- Téléphone :
- 02 35 80 66 62
- Adressse :
- 68 rue de la Forge Féret
76520 Boos, France
