Maison neuve à
Vielle-Saint-Girons (40560) Référence : NP2481586_2

Prix du projet : Maison avec Terrain

prix 207 000 €

  • 4 pièces
  • 3 chambres
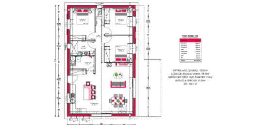
  • Surface maison 60 m2

Nathalie PENICAUT des maisons MCA Soustons, vous propose d'adapter le modèle Lys, sur ce beau terrain d'environ 550m2, idéalement situé dans un petit lotissement, sur la commune de Vielle St Girons, à seulement quelques minutes de la plage et vaste réseau de pistes cyclables.

Cette maison de 60m2 a tout d'une grande ! Elle est composée d'un espace à vivre traversant avec cuisine ouverte, et espace de rangement dans l'entrée. L'espace nuit est quant à lui composé de 3 chambres avec placards, une salle d'eau, et un WC séparé.

Ce modèle saura vous plaire grâce à son agencement optimisé au maximum. Elle est idéale pour un premier achat, un investissement locatif ou saisonnier, mais aussi pour loger un proche en complément de votre résidence principale, car elle est également conçue pour être adaptée aux normes PMR.

Le prix affiché comprend le terrain, les frais de notaire, les frais annexes (raccordements, bornage), et cette maison livrée prête à décorer (prévoir les sols, la cuisine et les sanitaires).

Ne tardez pas, dernière opportunité sur le secteur, contactez Nathalie PENICAUT à l'agence MCA de Soustons, afin qu'elle vous guide dans les démarches et vous accompagne dans ce projet de construction personnalisé, aux normes RE2020.

Mentions légales

Idée de réalisation en modèle prêt à décorer sur l'un de nos terrains partenaires, sous réserve de disponibilités. Voir détails en agence.

Contactez l'agence de Soustons

05 33 04 08 40

    * Champs obligatoires

    Vos informations sont traitées par HEXAOM et transmises à un conseiller commercial qui vous contactera afin de répondre à votre demande. Les plans et images présentés sur notre site sont la propriété d’HEXAOM et ne peuvent pas être reproduits sans son accord. Pour retrouver notre politique de protection des données personnelles et exercer vos droits conformément à la « loi informatique et liberté » cliquez-ici.