Maison neuve à
Vienne-en-Bessin
(14400) Référence :
JS2313506_8
Prix du projet : Maison avec Terrain
prix 229 900 €
- 6 pièces
- 4 chambres
- Surface maison 110 m2
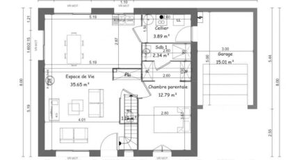
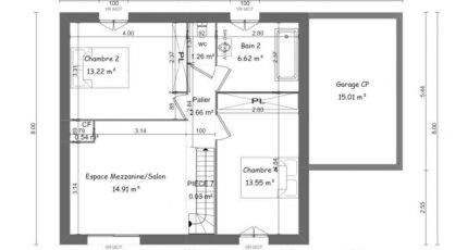
VENTE : maison F6 (110 m²) à Vienne-en-Bessin
IDÉALEMENT SITUÉE - MAISON 6 PIÈCES NEUVE
À vendre : localisée à 7 km de la Manche et à quelques kilomètres de Caen, nous vous présentons cette maison de 6 pièces de 110 m² idéalement située dans Vienne-en-Bessin (14400). Son intérieur compte quatre chambres, une cuisine et deux salles de bains.
Le terrain du bien est de 632 m².
Cette maison possède 2 niveaux. Elle est neuve.
Cette maison est située dans un secteur prisé. On trouve des écoles du primaire et du secondaire à moins de 10 minutes en voiture, tout comme deux structures d'accueil pour les tout-petits à moins de 10 minutes à pied. Niveau transports, il y a deux gares (Bayeux et Audrieu) à moins de 10 minutes en voiture. La nationale N13 est accessible à 4 km. On trouve des tennis, des bibliothèques, un bowling, des commerces, des boulangeries, des supermarchés, des boucheries-charcuteries et quatre bureaux de poste dans les environs. Enfin, 2 marchés animent le quartier.
Elle est à vendre pour la somme de 229 900 €.
Contactez Emilie HUE (06-29-81-46-66) pour toute question sur le bien.
Annonce proposée par un Agent Commercial Partenaire.
Mentions légales
Terrain proposé par un partenaire foncier selon disponibilités et autorisation de publicité au prix de 64 900 €. Hors droit d'enregistrement et frais de notaire. Maison proposée, avec un contrat de construction de maison individuelle, dans le cadre de la loi du 19/12/1990, au prix de 165 000 € (Hors branchements et raccordements, papiers peints, peintures, revêtement de sol dans les chambres, qui sont chiffrés dans les travaux qui restent à charge du client. Tarif modifiable sans préavis). Étiquette énergie : A. Différents modèles disponibles pour ce terrain. Assurances et garanties du constructeur comprises (RC professionnelle, décennale, dommage ouvrage).Agence Maisons France Confort de Bayeux (14400)
- Téléphone :
- 02 31 51 20 91
- Adressse :
- 2, rue Saint Loup
14400 Bayeux, France
