Maison neuve à
Vienne-en-Bessin
(14400) Référence :
JS2313506_10
Prix du projet : Maison avec Terrain
prix 209 900 €
- 5 pièces
- 3 chambres
- Surface maison 85 m2
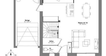
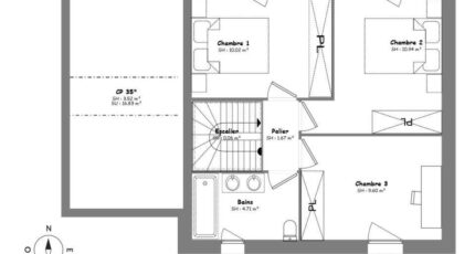
Maison F5 (85 m²) à vendre à Vienne-en-Bessin
IDÉALEMENT SITUÉE - MAISON 5 PIÈCES NEUVE
À vendre : localisée à 7 km de la Manche et à quelques kilomètres de Caen, nous vous proposons, idéalement située dans Vienne-en-Bessin (14400), cette maison de 5 pièces de 85 m².
Il s'agit d'une maison de 2 niveaux. Son intérieur comporte trois chambres, une cuisine et une salle de bains. La maison est neuve.
Le terrain du bien s'étend sur 632 m².
Cette maison est située dans un secteur convoité. Des écoles de tous types (de la maternelle au lycée) sont implantées à moins de 10 minutes en voiture, tout comme deux structures d'accueil pour les enfants en bas âge à moins de 10 minutes à pied. Côté transports, il y a les gares Bayeux et Audrieu à moins de 10 minutes en voiture. La nationale N13 est accessible à 4 km. On trouve des tennis, des bibliothèques, un bowling, des commerces, des boulangeries, des supermarchés, deux poissonneries et des épiceries à quelques minutes. Enfin, 2 marchés animent le quartier.
Elle est proposée à l'achat pour 209 900 €.
Contactez notre agence (HUE Emilie : 06-29-81-46-66) pour tout renseignement sur la maison ou sur les modalités de vente. Maisons France Confort Bayeux est là pour vous accompagner à toutes les étapes de votre projet.
Annonce proposée par un Agent Commercial Partenaire.
Mentions légales
Terrain proposé par un partenaire foncier selon disponibilités et autorisation de publicité au prix de 64 900 €. Hors droit d'enregistrement et frais de notaire. Maison proposée, avec un contrat de construction de maison individuelle, dans le cadre de la loi du 19/12/1990, au prix de 145 000 € (Hors branchements et raccordements, papiers peints, peintures, revêtement de sol dans les chambres, qui sont chiffrés dans les travaux qui restent à charge du client. Tarif modifiable sans préavis). Étiquette énergie : A. Différents modèles disponibles pour ce terrain. Assurances et garanties du constructeur comprises (RC professionnelle, décennale, dommage ouvrage).Agence Maisons France Confort de Bayeux (14400)
- Téléphone :
- 02 31 51 20 91
- Adressse :
- 2, rue Saint Loup
14400 Bayeux, France
