Maison neuve à
Vienne-en-Bessin
(14400) Référence :
JS2319750_2
Prix du projet : Maison avec Terrain
prix 256 000 €
- 5 pièces
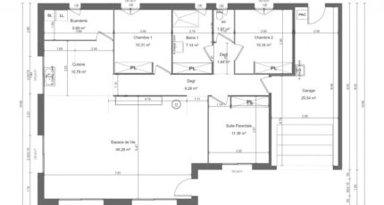
- 3 chambres
- Surface maison 110 m2
Maison T5 (110 m²) en vente à Bayeux
MAISON 5 PIÈCES NEUVE - PROCHE DE CAEN
À vendre à 9 km de la Manche et à deux pas de Caen, à Bayeux (14400), Maisons France Confort Bayeux vous présente cette maison de 5 pièces de plain-pied de 110 m² et de 301 m² de terrain.
Elle inclut trois chambres, une cuisine et une salle de bains. La maison est neuve.
Il y a des établissements scolaires du primaire et du secondaire à moins de 10 minutes à pied, tout comme une structure d'accueil pour les enfants en bas âge. Niveau transports, on trouve la gare Bayeux à proximité. On trouve un accès à la nationale N13 à 3 km. Il y a une bibliothèque, des commerces, des boulangeries, un supermarché, trois épiceries et une supérette à quelques minutes à peine. 2 marchés animent le quartier.
Elle est à vendre pour la somme de 256 000 €.
Contactez notre agence (HUE Emilie : 06-29-81-46-66) pour toute information sur ce bien, sur les démarches à suivre ou sur les modalités de vente. Maisons France Confort Bayeux vous accompagne à toutes les étapes de votre projet et dans tous vos projets immobiliers.
Annonce proposée par un Agent Commercial Partenaire.
Mentions légales
Terrain proposé par un partenaire foncier selon disponibilités et autorisation de publicité au prix de 56 000 €. Hors droit d'enregistrement et frais de notaire. Maison proposée, avec un contrat de construction de maison individuelle, dans le cadre de la loi du 19/12/1990, au prix de 200 000 € (Hors branchements et raccordements, papiers peints, peintures, revêtement de sol dans les chambres, qui sont chiffrés dans les travaux qui restent à charge du client. Tarif modifiable sans préavis). Étiquette énergie : A. Différents modèles disponibles pour ce terrain. Assurances et garanties du constructeur comprises (RC professionnelle, décennale, dommage ouvrage).Agence Maisons France Confort de Bayeux (14400)
- Téléphone :
- 02 31 51 20 91
- Adressse :
- 2, rue Saint Loup
14400 Bayeux, France
