Maison neuve à
Vienne-en-Bessin
(14400) Référence :
JS2319750_5
Prix du projet : Maison avec Terrain
prix 256 000 €
- 7 pièces
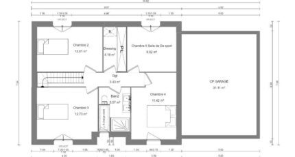
- 5 chambres
- Surface maison 120 m2
VENTE d'une maison de 7 pièces (120 m²) à Bayeux
MAISON 7 PIÈCES NEUVE - PROCHE DE CAEN
À 9 km de la Manche et à quelques kilomètres de Caen, en vente à Bayeux (14400), votre agence Maisons France Confort Bayeux est ravie de vous présenter cette maison de 7 pièces de 120 m². Son intérieur offre cinq chambres, une cuisine et deux salles de bains.
Le terrain du bien est de 301 m².
Cette maison compte 2 niveaux. Elle est neuve.
On trouve des écoles du primaire et du secondaire à moins de 10 minutes à pied, tout comme une structure d'accueil pour les enfants en bas âge. Côté transports, il y a la gare Bayeux dans un rayon de 1 km. On trouve un accès à la nationale N13 à 3 km. On trouve une bibliothèque, des commerces, des boulangeries, un supermarché, un bureau de poste et une supérette à proximité. Enfin, 2 marchés animent le quartier.
Elle est proposée à l'achat pour 256 000 €.
Prenez contact avec Emilie HUE (06-29-81-46-66) pour toute question sur cette maison, sur les démarches à suivre ou sur les modalités de vente.
Annonce proposée par un Agent Commercial Partenaire.
Mentions légales
Terrain proposé par un partenaire foncier selon disponibilités et autorisation de publicité au prix de 56 000 €. Hors droit d'enregistrement et frais de notaire. Maison proposée, avec un contrat de construction de maison individuelle, dans le cadre de la loi du 19/12/1990, au prix de 200 000 € (Hors branchements et raccordements, papiers peints, peintures, revêtement de sol dans les chambres, qui sont chiffrés dans les travaux qui restent à charge du client. Tarif modifiable sans préavis). Étiquette énergie : A. Différents modèles disponibles pour ce terrain. Assurances et garanties du constructeur comprises (RC professionnelle, décennale, dommage ouvrage).Agence Maisons France Confort de Bayeux (14400)
- Téléphone :
- 02 31 51 20 91
- Adressse :
- 2, rue Saint Loup
14400 Bayeux, France
