Maison neuve à
Vienne-en-Bessin
(14400) Référence :
JS2319750_8
Prix du projet : Maison avec Terrain
prix 221 000 €
- 6 pièces
- 4 chambres
- Surface maison 110 m2
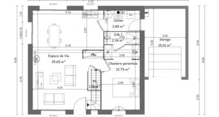
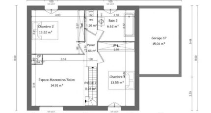
VENTE : maison de 6 pièces (110 m²) à Bayeux
PROCHE DE CAEN - MAISON 6 PIÈCES NEUVE
À vendre à 9 km de la Manche et à quelques kilomètres de Caen, à Bayeux (14400), nous vous présentons cette maison de 6 pièces de 110 m² et de 301 m² de terrain. Son intérieur compte quatre chambres, une cuisine et deux salles de bains.
Cette maison possède 2 niveaux. Elle est neuve.
On trouve des établissements scolaires de tous niveaux (de la maternelle au lycée) à moins de 10 minutes à pied, tout comme une structure d'accueil pour les tout-petits. Niveau transports, il y a la gare Bayeux à quelques pas du bien. La nationale N13 est accessible à 3 km. On trouve une bibliothèque, des commerces, des boulangeries, un supermarché, des boucheries-charcuteries et trois épiceries à proximité de la maison. 2 marchés animent les environs.
Son prix de vente est de 221 000 €.
N'hésitez pas à prendre contact avec notre agence (HUE Emilie : 06-29-81-46-66) pour plus d'informations sur la maison, sur les modalités de vente ou sur les démarches à suivre. Maisons France Confort Bayeux vous accompagne dans tous vos projets immobiliers et dans toutes vos démarches.
Annonce proposée par un Agent Commercial Partenaire.
Mentions légales
Terrain proposé par un partenaire foncier selon disponibilités et autorisation de publicité au prix de 56 000 €. Hors droit d'enregistrement et frais de notaire. Maison proposée, avec un contrat de construction de maison individuelle, dans le cadre de la loi du 19/12/1990, au prix de 165 000 € (Hors branchements et raccordements, papiers peints, peintures, revêtement de sol dans les chambres, qui sont chiffrés dans les travaux qui restent à charge du client. Tarif modifiable sans préavis). Étiquette énergie : A. Différents modèles disponibles pour ce terrain. Assurances et garanties du constructeur comprises (RC professionnelle, décennale, dommage ouvrage).Agence Maisons France Confort de Bayeux (14400)
- Téléphone :
- 02 31 51 20 91
- Adressse :
- 2, rue Saint Loup
14400 Bayeux, France
