Maison neuve à
Vienne-en-Bessin
(14400) Référence :
JS2485111_1
Prix du projet : Maison avec Terrain
prix 219 900 €
- 5 pièces
- 3 chambres
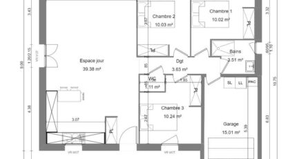
- Surface maison 85 m2
MAISON NEUVE DE 85 M² À VIENNE-EN-BESSIN, IDÉALEMENT SITUÉE
PRÉSENTATION DU BIEN
Située à Vienne-en-Bessin, cette maison neuve à construire offre une surface habitable de 85 m² sur un terrain de 632 m². Elle bénéficie d'un emplacement idéal.
Cette maison de plain-pied propose trois chambres, une cuisine et une salle de bains avec baignoire pour un espace de vie complet de 85 m².
Avec une surface de terrain de 632 m², vous disposez d'un bel espace extérieur pour aménager selon vos envies.
ENVIRONNEMENT
Vienne-en-Bessin est une commune située à environ 21 kilomètres de Caen. Plusieurs établissements scolaires sont accessibles à une distance raisonnable, notamment l'école primaire Hubert Bodin, le collège Jean de la Varende et l'institut agricole privé Lemonnier à Saint Gabriel Brécy.
Les transports en commun incluent plusieurs lignes de bus proposant différentes destinations.
Des commerces se trouvent également autour de ce bien, facilitant votre vie quotidienne.
NOUS CONTACTER
Cette maison est proposée à la vente pour un prix de 219 900 euros.
Pour toute information complémentaire ou pour organiser une visite, contactez Emilie HUE de Maisons France Confort Bayeux au 06-29-81-46-66.
Annonce proposée par un Agent Commercial Partenaire.
Mentions légales
Terrain proposé par un partenaire foncier selon disponibilités et autorisation de publicité au prix de 64 900 €. Hors droit d'enregistrement et frais de notaire. Terrain + Maison proposés au prix de 219 900 € (Hors branchements et raccordements, papiers peints, peintures, revêtement de sol dans les chambres. Tarif modifiable sans préavis). Etiquette énergie : A. Différents modèles disponibles pour ce terrain. Assurances et garanties du constructeur (RC professionnelle, décennale, dommage ouvrage, garantie de remboursement de l'acompte, livraison à prix et délai convenu) : https://www.maisons-france-confort.fr/mentions-legales/. HEXAOM Services est enregistré auprès de l'ORIAS en tant que Courtier en financement, Niveau 1, sous le numéro 14001345.Agence Maisons France Confort de Bayeux (14400)
- Téléphone :
- 02 31 51 20 91
- Adressse :
- 2, rue Saint Loup
14400 Bayeux, France
