Maison neuve à
Vierzon (18100) Référence : JL2241442_4

Prix du projet : Maison avec Terrain

prix 169 300 €

  • 4 pièces
  • 3 chambres
  • Surface maison 85 m2

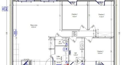
Maison T4 (85 m²) en vente à Vierzon
IDÉALEMENT SITUÉE - MAISON 4 PIÈCES NEUVE
Ayez le coup de coeur pour cette maison de 4 pièces de plain-pied de 85 m² et de 2 310 m² de terrain idéalement située dans Vierzon (18100). Son intérieur inclut trois chambres, une cuisine et une salle de bains.
La maison est neuve.
La maison se trouve dans un secteur attractif. Des écoles (de la maternelle au lycée) sont implantées à moins de 10 minutes à pied, tout comme deux structures d'accueil pour la petite enfance. Niveau transports en commun, il y a trois gares (Vierzon, Vierzon Forges et Foëcy) à moins de 10 minutes en voiture. Les autoroutes A71 et A20 sont accessibles à moins de 3 km. On trouve un bassin de natation, des commerces, des boulangeries, deux supermarchés, une supérette et des boucheries-charcuteries à proximité. Le marché Centre-Ville a lieu chaque samedi matin.
Elle est proposée à l'achat pour 169 300 €.
Contactez Jonathan LEBLANC (02-48-50-26-25) pour tout renseignement sur la maison ou sur les modalités de vente. Maisons Bruno Petit MJB Bourges vous accompagne à toutes les étapes de l'achat et dans tous vos projets immobiliers.

Mentions légales

Terrain proposé par un partenaire foncier selon disponibilités et autorisation de publicité au prix de 35 000 €. Hors droit d'enregistrement et frais de notaire. Maison proposée, avec un contrat de construction de maison individuelle, dans le cadre de la loi du 19/12/1990, au prix de 134 300 € (Hors branchements et raccordements, papiers peints, peintures, revêtement de sol dans les chambres, qui sont chiffrés dans les travaux qui restent à charge du client. Tarif modifiable sans préavis). Étiquette énergie : A. Différents modèles disponibles pour ce terrain. Assurances et garanties du constructeur comprises (RC professionnelle, décennale, dommage ouvrage).

Contactez l'agence de Bourges

02 48 50 26 25

    * Champs obligatoires

    Vos informations sont traitées par HEXAOM et transmises à un conseiller commercial qui vous contactera afin de répondre à votre demande. Les plans et images présentés sur notre site sont la propriété d’HEXAOM et ne peuvent pas être reproduits sans son accord. Pour retrouver notre politique de protection des données personnelles et exercer vos droits conformément à la « loi informatique et liberté » cliquez-ici.