Maison neuve à
Ville-Saint-Jacques
(77130) Référence :
CY2430590_1
Prix du projet : Maison avec Terrain
prix 219 000 €
- 5 pièces
- 3 chambres
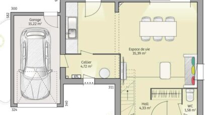
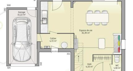
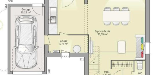
- Surface maison 90 m2
Maison de 5 pièces (90 m²) à vendre à Ville-Saint-Jacques
PROCHE DE MELUN - MAISON 5 PIÈCES NEUVE
À quelques minutes de la gare de Montereau (Paris à 60 min par le Transilien R), en vente à Ville-Saint-Jacques (77130), nous sommes heureux de vous présenter cette maison de 5 pièces de 90 m² et de 520 m² de terrain.
Cette maison possède 2 niveaux. Elle offre trois chambres, une cuisine et une salle de bains. La maison est neuve.
L'École Élémentaire du Cormier est implantée à moins de 10 minutes à pied. Niveau transports, il y a cinq gares à moins de 10 minutes en voiture. On trouve une bibliothèque et deux boulangeries à quelques minutes à peine.
Elle est proposée à l'achat pour 219 000 €.
Prenez contact avec notre agence (YAHIAOUI Cedric : 06-66-57-00-63) pour tout renseignement sur la maison, sur les modalités de vente ou sur les démarches à suivre. Maisons France Confort Magny-le-Hongre est là pour vous accompagner dans tous vos projets immobiliers.
Annonce proposée par un Agent Commercial Partenaire.
Mentions légales
Terrain proposé par un partenaire foncier selon disponibilités et autorisation de publicité au prix de 59 000 €. Hors droit d'enregistrement et frais de notaire. Terrain + Maison proposés au prix de 219 000 € (Hors branchements et raccordements, papiers peints, peintures, revêtement de sol dans les chambres. Tarif modifiable sans préavis). Etiquette énergie : A. Différents modèles disponibles pour ce terrain. Assurances et garanties du constructeur (RC professionnelle, décennale, dommage ouvrage, garantie de remboursement de l'acompte, livraison à prix et délai convenu) : https://www.maisons-france-confort.fr/mentions-legales/. HEXAOM Services est enregistré auprès de l'ORIAS en tant que Courtier en financement, Niveau 1, sous le numéro 14001345.Agence Maisons France Confort de Magny-le-Hongre (77700)
- Téléphone :
- 01 84 80 92 96
- Adressse :
- 11 rue de Courtalin
77700 Magny-le-Hongre, France
