Maison neuve à
Villefranque (64990) Référence : IC2313086_1

Prix du projet : Maison avec Terrain

prix 402 000 €

  • 4 pièces
  • 3 chambres
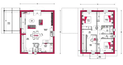
  • Surface maison 110 m2

Sur la commune de Villefranque, Couleur Villas vous propose de découvrir ce projet terrain + maison neuve- « Style Néo-basque » dans un cadre et un environnement paisible, proche des écoles et crèche, des commerces et axes routiers.
Vous apprécierez cette Villa de 110 m2, composé d'une pièce de vie spacieuse de 50 M2, un local technique, 1 WC.
A l'étage, 3 belles chambres donnant sur un balcon, 1 salle de bain, 1 WC séparé et un bureau. Une belle et grande terrasse de 15m2 couverte à l'extérieur.
Les frais de Notaire et frais de terrassement seront à ajouter uniquement sur le terrain.
Pour que nous puissions ensemble, étudier votre projet, sur vos besoins et vos envies, et ainsi concevoir votre maison, vous aider à définir l'enveloppe budgétaire complète et adaptée, n'hésitez pas à prendre rendez-vous à l'agence de Bayonne.
Nous vous proposons par le biais de cette annonce, différents modèles personnalisés.
Je serais ravie de vous accompagner tout au long de votre projet, jusqu'à la livraison de votre maison.
Votre attachée commerciale Couleur Villas - Mme Isabelle CARRARO - O6 99 95 90 21

Illustration non contractuelle-terrain : Sous réserve de disponibilité auprès de notre partenaire foncier.

Mentions légales

Terrain proposé par un partenaire foncier selon disponibilité dans le cadre d’un projet de construction avec Couleur Villas. Les descriptions, photographies, surfaces et prix illustrant l’annonce sont fournies à titre indicatif et ne sont pas contractuels. Non soumis au DPE. Différents modèles disponibles.

Contactez l'agence de Bayonne

05 59 25 04 24

    * Champs obligatoires

    Vos informations sont traitées par HEXAOM et transmises à un conseiller commercial qui vous contactera afin de répondre à votre demande. Les plans et images présentés sur notre site sont la propriété d’HEXAOM et ne peuvent pas être reproduits sans son accord. Pour retrouver notre politique de protection des données personnelles et exercer vos droits conformément à la « loi informatique et liberté » cliquez-ici.