Maison neuve à
Villegouin (36500) Référence : KG2470937_1

Prix du projet : Maison avec Terrain

prix 136 150 €

  • 4 pièces
  • 3 chambres
  • Surface maison 85 m2

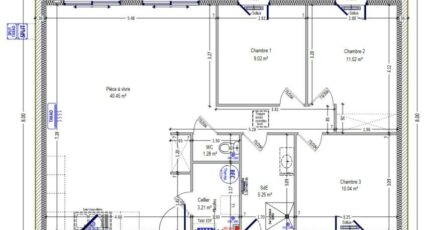
Villegouin :Projet de construction maison de 4 pièces (85 m²)
IDÉALEMENT SITUÉE - MAISON 4 PIÈCES NEUVE
En vente : nous sommes ravis de vous proposer, idéalement située dans Villegouin (36500), cette maison de 4 pièces de plain-pied de 85 m² et de 815 m² de terrain. Conçue de plain-pied, elle offre trois chambres, une cuisine et une salle de bains.
Cette maison est neuve.
La maison est située dans un quartier convoité. Une école élémentaire y est implantée.
Elle est proposée à l'achat pour 136 150 €.
Contactez notre agence (Kevin GRIMAUD : *6-22-14-89-67) pour tout renseignement sur la maison.

Mentions légales

Terrain proposé par un partenaire foncier selon disponibilités et autorisation de publicité au prix de 8 150 €. Hors droit d'enregistrement et frais de notaire. Terrain + Maison proposés au prix de 136 150 € (Hors branchements et raccordements, papiers peints, peintures, revêtement de sol dans les chambres. Tarif modifiable sans préavis). Etiquette énergie : A. Différents modèles disponibles pour ce terrain. Assurances et garanties du constructeur (RC professionnelle, décennale, dommage ouvrage, garantie de remboursement de l'acompte, livraison à prix et délai convenu) : https://www.maisons-brunopetit.fr/mentions-legales/.

Contactez l'agence de Châteauroux

02 54 22 66 24

    * Champs obligatoires

    Vos informations sont traitées par HEXAOM et transmises à un conseiller commercial qui vous contactera afin de répondre à votre demande. Les plans et images présentés sur notre site sont la propriété d’HEXAOM et ne peuvent pas être reproduits sans son accord. Pour retrouver notre politique de protection des données personnelles et exercer vos droits conformément à la « loi informatique et liberté » cliquez-ici.