Maison neuve à
Villemoisson-sur-Orge
(91360) Référence :
SA2423050_2
Prix du projet : Maison avec Terrain
prix 445 000 €
- 6 pièces
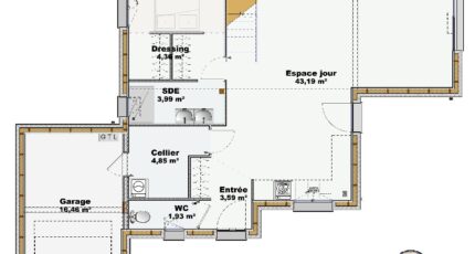
- 5 chambres
- Surface maison 114 m2
Maison T6 (114 m²) à vendre à Villemoisson-sur-Orge
MAISON 6 PIÈCES NEUVE - PROCHE DE PARIS
En vente : à quelques minutes de la station Épinay-sur-Orge (Paris à 15 min par le RER C), votre agence Maisons France Confort Ris-Orangis est heureuse de vous présenter cette maison de 6 pièces de 114 m² à Villemoisson-sur-Orge (91360). Son intérieur inclut cinq chambres, une cuisine et deux salles de bains.
Le terrain de cette maison s'étend sur 427 m².
Cette maison compte 2 niveaux. Elle est neuve.
Le Collège Blaise Pascal, l'École Maternelle Emile Bouton, l'École Élémentaire Emile Bouton et l'École Primaire les Erables sont implantés à moins de 10 minutes à pied. Niveau transports, on trouve trois lignes de RER (C, D et B) ainsi que 27 gares à moins de 10 minutes en voiture. Il y a un tennis, des commerces, quatre boulangeries, deux supermarchés, des épiceries et un bureau de poste à proximité.
Elle est à vendre pour la somme de 445 000 €.
N'hésitez pas à prendre contact avec notre agence (Sabrina AUGUSTINE : 06-23-03-68-32) pour tout renseignement sur cette maison, sur les démarches à suivre ou sur les modalités de vente. Maisons France Confort Ris-Orangis est là pour vous accompagner à toutes les étapes de votre projet.
Mentions légales
Terrain proposé par un partenaire foncier selon disponibilités et autorisation de publicité au prix de 210 000 €. Hors droit d'enregistrement et frais de notaire. Terrain + Maison proposés au prix de 445 000 € (Hors branchements et raccordements, papiers peints, peintures, revêtement de sol dans les chambres. Tarif modifiable sans préavis). Etiquette énergie : A. Différents modèles disponibles pour ce terrain. Assurances et garanties du constructeur (RC professionnelle, décennale, dommage ouvrage, garantie de remboursement de l'acompte, livraison à prix et délai convenu) : https://www.maisons-france-confort.fr/mentions-legales/. HEXAOM Services est enregistré auprès de l'ORIAS en tant que Courtier en financement, Niveau 1, sous le numéro 14001345.Agence Maisons France Confort de Ris-Orangis (91130)
- Téléphone :
- 01 60 47 83 15
- Adressse :
- 57 rue Albert Rémy
91130 Ris-Orangis, France
