Maison neuve à
Villeneuve (04180) Référence : GFB2446352_1

Prix du projet : Maison avec Terrain

prix 351 000 €

  • 7 pièces
  • 6 chambres
  • Surface maison 104 m2

Maisons de Manon - Ligne Bois réalise pour vous un projet de maison individuelle à ossature bois, sur une parcelle de 605 m² située dans un quartier résidentiel, avec vue dégagée, environnement maîtrisé, et cadre agréable. Terrain non viabilisé.

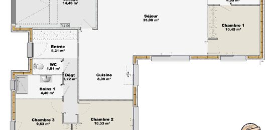
Le modèle NATURELLE 104 est une maison à étage développant environ 104 m² habitables, au style sobre et intemporel, pensée pour répondre aux besoins d'une famille tout en optimisant les surfaces et les usages.
Au rez-de-chaussée, la maison propose un espace de vie lumineux d'environ 33 m², avec cuisine ouverte sur le salon/salle à manger, offrant une belle continuité entre les espaces.
Un cellier, un WC indépendant, ainsi qu'une chambre de plain-pied avec salle d'eau attenante complètent ce niveau, idéal pour recevoir ou créer une suite parentale.
À l'étage, l'espace nuit se compose de trois chambres, d'une salle de bains et d'un dégagement central permettant une circulation fluide et fonctionnelle pour toute la famille.
L'architecture du modèle NATURELLE 97 s'inscrit dans un esprit méditerranéen, avec des volumes simples, une toiture en tuiles et des lignes équilibrées, favorisant une intégration harmonieuse dans son environnement.
Ce projet est réalisé en ossature bois, un mode constructif aux avantages majeurs :
une construction jusqu'à 5 mois plus rapide qu'une maison traditionnelle,
un excellent confort thermique et acoustique, été comme hiver,
un chantier propre et calme, grâce à la préfabrication des murs en atelier hors site,
un impact environnemental fortement réduit, avec une empreinte carbone nettement inférieure à celle d'une construction traditionnelle.
Prestations et équipements de qualité, adaptables selon vos besoins : menuiseries avec volets roulants, carrelage grands formats, cloisons techniques, équipements sanitaires complets, domotique possible, etc.
Construction conforme à la réglementation environnementale RE 2020.
Projet personnalisable selon vos attentes, votre terrain et votre budget.
📞

Mentions légales

Terrain proposé par un partenaire foncier selon disponibilités et autorisation de publicité au prix de 99 000 €. Hors droit d'enregistrement et frais de notaire. Terrain + Maison proposés au prix de 351 000 € (Hors branchements et raccordements, papiers peints, peintures, revêtement de sol dans les chambres. Tarif modifiable sans préavis). Etiquette énergie : A. Différents modèles disponibles pour ce terrain. Assurances et garanties du constructeur (RC professionnelle, décennale, dommage ouvrage, garantie de remboursement de l'acompte, livraison à prix et délai convenu) : https://www.maisons-de-manon.fr/informations-legales/. HEXAOM Services est enregistré auprès de l'ORIAS en tant que Courtier en financement, Niveau 1, sous le numéro 14001345.

Contactez l'agence de Manosque

04 92 72 29 79

    * Champs obligatoires

    Vos informations sont traitées par HEXAOM et transmises à un conseiller commercial qui vous contactera afin de répondre à votre demande. Les plans et images présentés sur notre site sont la propriété d’HEXAOM et ne peuvent pas être reproduits sans son accord. Pour retrouver notre politique de protection des données personnelles et exercer vos droits conformément à la « loi informatique et liberté » cliquez-ici.