Maison neuve à
Villeneuve-la-Guyard
(89340) Référence :
AD2318418_3
Prix du projet : Maison avec Terrain
prix 221 800 €
- 5 pièces
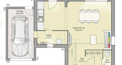
- 3 chambres
- Surface maison 90 m2
Villeneuve-la-Guyard : maison de 5 pièces (90 m²) en vente
EMPLACEMENT PRIVILÉGIÉ - MAISON 5 PIÈCES NEUVE
En vente : à quelques kilomètres de Sens, bénéficiant d'un emplacement privilégié dans Villeneuve-la-Guyard (89340), ayez le coup de coeur pour cette maison de 5 pièces de 90 m². Son intérieur est composé de trois chambres, d'une cuisine et d'une salle de bains.
Le terrain de la propriété s'étend sur 460 m².
Il s'agit d'une maison de 2 niveaux. Elle est neuve.
Cette maison se trouve dans un secteur attractif. On y trouve l'École Élémentaire Jean-Baptiste Chauveau, l'École Maternelle Rosa Bonheur et le Collège Claude Debussy. Niveau transports, il y a trois gares (Champigny sur Yonne, Villeneuve-la-Guyard et Pont-sur-Yonne) à moins de 10 minutes en voiture. Il y a un accès à l'autoroute A5 à 9 km. On trouve un commerce à quelques minutes du logement.
Elle est à vendre pour la somme de 221 800 €.
Contactez notre agence (DELOHEN Anne : 06-30-93-26-67) pour obtenir de plus amples renseignements sur la maison ou sur les modalités de vente. Maisons France Confort Nemours vous accompagne à toutes les étapes de votre projet et dans tous vos projets immobiliers.
Annonce proposée par un Agent Commercial Partenaire.
Mentions légales
Terrain proposé par un partenaire foncier selon disponibilités et autorisation de publicité au prix de 45 000 €. Hors droit d'enregistrement et frais de notaire. Terrain + Maison proposés au prix de 176 800 € (Hors branchements et raccordements, papiers peints, peintures, revêtement de sol dans les chambres. Tarif modifiable sans préavis). Etiquette énergie : A. Différents modèles disponibles pour ce terrain. Assurances et garanties du constructeur (RC professionnelle, décennale, dommage ouvrage, garantie de remboursement de l'acompte, livraison à prix et délai convenu) : https://www.maisons-france-confort.fr/mentions-legales/. HEXAOM Services est enregistré auprès de l'ORIAS en tant que Courtier en financement, Niveau 1, sous le numéro 14001345.Agence Maisons France Confort de Nemours (77140)
- Téléphone :
- 01 64 28 58 32
- Adressse :
- 16 Avenue Carnot
77140 Nemours, France
