Maison neuve à
Villeneuve-la-Guyard
(89340) Référence :
AD2466391_2
Prix du projet : Maison avec Terrain
prix 238 500 €
- 5 pièces
- 3 chambres
- Surface maison 90 m2
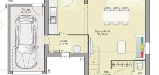
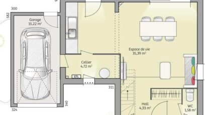
Maison de 5 pièces (90 m²) en vente à Villeneuve-la-Guyard
PROCHE GARE - MAISON 5 PIÈCES NEUVE
En vente : située à quelques kilomètres de Sens, dans Villeneuve-la-Guyard (89340), proche de la gare, ayez le coup de coeur pour cette maison de 5 pièces de 90 m². Elle comporte trois chambres, une cuisine et une salle de bains.
Le terrain du bien s'étend sur 314 m².
Il s'agit d'une maison de 2 niveaux. Elle est neuve.
Quatre établissements scolaires sont implantés à moins de 10 minutes en voiture, tout comme deux crèches à moins de 10 minutes à pied. Côté transports, on trouve les gares Champigny sur Yonne, Villeneuve-la-Guyard et Pont-sur-Yonne à moins de 10 minutes en voiture. On trouve un accès à l'autoroute A5 à 9 km. Il y a des tennis, des bibliothèques, quatre bassins de natation, des commerces, des boucheries-charcuteries, quatre bureaux de poste et des épiceries à quelques minutes. Le marché Rue Durocher anime le quartier chaque jeudi matin.
Son prix de vente est de 238 500 €.
Prenez contact avec notre agence (Anne DELOHEN : 06-30-93-26-67) pour toute information sur la maison et sur les modalités de vente. Donnez vie à vos projets immobiliers avec Maisons France Confort Nemours.
Annonce proposée par un Agent Commercial Partenaire.
Mentions légales
Terrain proposé par un partenaire foncier selon disponibilités et autorisation de publicité au prix de 57 000 €. Hors droit d'enregistrement et frais de notaire. Terrain + Maison proposés au prix de 238 500 € (Hors branchements et raccordements, papiers peints, peintures, revêtement de sol dans les chambres. Tarif modifiable sans préavis). Etiquette énergie : A. Différents modèles disponibles pour ce terrain. Assurances et garanties du constructeur (RC professionnelle, décennale, dommage ouvrage, garantie de remboursement de l'acompte, livraison à prix et délai convenu) : https://www.maisons-france-confort.fr/mentions-legales/. HEXAOM Services est enregistré auprès de l'ORIAS en tant que Courtier en financement, Niveau 1, sous le numéro 14001345.Agence Maisons France Confort de Nemours (77140)
- Téléphone :
- 01 64 28 58 32
- Adressse :
- 16 Avenue Carnot
77140 Nemours, France
