Maison neuve à
Villeneuve-lès-Béziers
(34420) Référence :
AB2435525_9
Prix du projet : Maison avec Terrain
prix 511 000 €
- 6 pièces
- 4 chambres
- Surface maison 140 m2
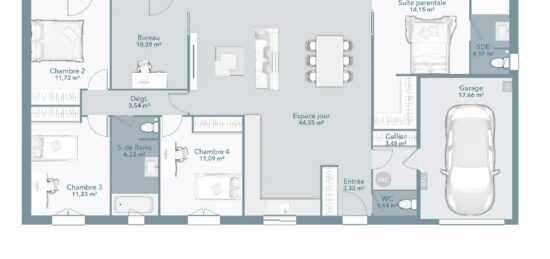
PROJET DE CONSTRUCTION - Villeneuve-lès-Béziers : maison F6 (140 m²)
MAISON 6 PIÈCES - PROCHE DE BÉZIERS
À vendre : localisée à 8 km de la mer Méditerranée et à 6 km de Béziers, Maisons France Confort Béziers vous propose cette maison de 6 pièces de 140 m² à Villeneuve-lès-Béziers (34420).
Il s'agit d'une maison de 2 niveaux. Son intérieur propose quatre chambres, une cuisine, un cellier et deux salles de bains + GARAGE.
(Carrelage inclus dans toutes les pièces / Raccordements inclus / Gainable compris).
Le terrain du bien est de 1 120 m².
L'École Primaire Georges Brassens est implantée à moins de 10 minutes à pied, tout comme une crèche. Côté transports en commun, on trouve la gare Béziers à moins de 10 minutes en voiture. Il y a deux tennis, une bibliothèque, trois boulangeries, des commerces, deux boucheries-charcuteries, un bureau de poste et deux épiceries à quelques minutes du logement.
Son prix de vente est de 511 000 €.
Pour plus d'information contacter Anthony BALLESTER 06 27 21 51 55 Maisons France Confort Béziers pour échanger sur votre projet et réaliser une étude gratuite. (Plan personnalisable). Tous nos ouvrages sont réalisés sur-mesure en fonction de vos attentes et de nos échanges avec vous ainsi que dans le respect de la règlementation RE 2020. Ce projet comporte les garanties suivantes: Contrat de construction CCMI. Dommage/Ouvrage. RC Garantie décennale. Parfaite achèvement. Etude de sol G2. Prix et délais convenu. Garantie de livraison. Garantie financière Pour votre tranquillité nous nous occupons de toutes les formalités administratives.
Mentions légales
Terrain proposé par un partenaire foncier selon disponibilités et autorisation de publicité au prix de 195 000 €. Hors droit d'enregistrement et frais de notaire. Terrain + Maison proposés au prix de 511 000 € (Hors branchements et raccordements, papiers peints, peintures, revêtement de sol dans les chambres. Tarif modifiable sans préavis). Etiquette énergie : A. Différents modèles disponibles pour ce terrain. Assurances et garanties du constructeur (RC professionnelle, décennale, dommage ouvrage, garantie de remboursement de l'acompte, livraison à prix et délai convenu) : https://www.maisons-france-confort.fr/mentions-legales/. HEXAOM Services est enregistré auprès de l'ORIAS en tant que Courtier en financement, Niveau 1, sous le numéro 14001345.Agence Maisons France Confort de Béziers (34500)
- Téléphone :
- 04 67 00 85 60
- Adressse :
- 66, avenue Pierre Verdier
34500 Béziers, France
