Maison neuve à
Villeparisis (77270) Référence : TM2433250_3

Prix du projet : Maison avec Terrain

prix 360 000 €

  • 5 pièces
  • 3 chambres
  • Surface maison 90 m2

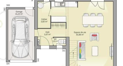
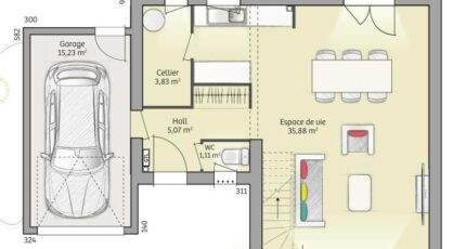
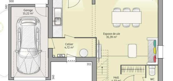
VENTE d'une maison T5 (90 m²) à Villeparisis
MAISON 5 PIÈCES NEUVE
En vente : à deux pas du RER B (station Villeparisis-Mitry-le-Neuf, 30 min de Paris), notre agence Maisons France Confort Magny-le-Hongre est heureuse de vous présenter cette maison de 5 pièces de 90 m² à Villeparisis (77270).
Cette maison comporte 2 niveaux. Son intérieur dispose de trois chambres, d'une cuisine et d'une salle de bains. La maison est neuve.
Le terrain de la propriété est de 250 m².
Il y a plusieurs écoles (maternelle, élémentaire, primaire et collège) à moins de 10 minutes à pied. Niveau transports en commun, on trouve les lignes B et E du RER ainsi que 26 gares à moins de 10 minutes en voiture. Il y a un bassin de natation, une bibliothèque, un tennis, des commerces, quatre boulangeries, un bureau de poste, une boucherie-charcuterie et trois épiceries dans les environs. Enfin, le marché Rue de Gaulle anime les environs.
Elle est à vendre pour la somme de 360 000 €.
N'hésitez pas à prendre contact avec Teddy MELES (06-17-56-83-36) pour plus de renseignements sur la maison et sur les démarches à suivre. Maisons France Confort Magny-le-Hongre vous accompagne dans tous vos projets immobiliers et à toutes les étapes de votre projet.

Annonce proposée par un Agent Commercial Partenaire.

Mentions légales

Terrain proposé par un partenaire foncier selon disponibilités et autorisation de publicité au prix de 170 000 €. Hors droit d'enregistrement et frais de notaire. Terrain + Maison proposés au prix de 360 000 € (Hors branchements et raccordements, papiers peints, peintures, revêtement de sol dans les chambres. Tarif modifiable sans préavis). Etiquette énergie : A. Différents modèles disponibles pour ce terrain. Assurances et garanties du constructeur (RC professionnelle, décennale, dommage ouvrage, garantie de remboursement de l'acompte, livraison à prix et délai convenu) : https://www.maisons-france-confort.fr/mentions-legales/. HEXAOM Services est enregistré auprès de l'ORIAS en tant que Courtier en financement, Niveau 1, sous le numéro 14001345.

Contactez l'agence de Magny-le-Hongre

01 84 80 92 96

    * Champs obligatoires

    Vos informations sont traitées par HEXAOM et transmises à un conseiller commercial qui vous contactera afin de répondre à votre demande. Les plans et images présentés sur notre site sont la propriété d’HEXAOM et ne peuvent pas être reproduits sans son accord. Pour retrouver notre politique de protection des données personnelles et exercer vos droits conformément à la « loi informatique et liberté » cliquez-ici.