Maison neuve à
Villeparisis
(77270) Référence :
TM2433250_4
Prix du projet : Maison avec Terrain
prix 450 000 €
- 6 pièces
- 5 chambres
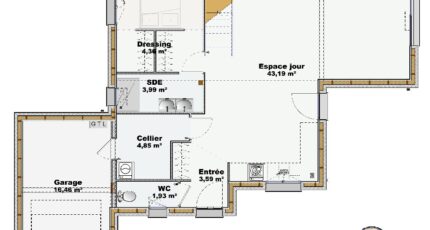
- Surface maison 114 m2
Maison T6 (114 m²) en vente à Villeparisis
MAISON 6 PIÈCES NEUVE
À proximité du RER B (station Villeparisis-Mitry-le-Neuf, 30 min de Paris), notre agence Maisons France Confort Magny-le-Hongre est heureuse de vous proposer cette maison de 6 pièces de 114 m² en vente à Villeparisis (77270).
Il s'agit d'une maison de 2 niveaux. Son intérieur offre cinq chambres, une cuisine et deux salles de bains. Cette maison est neuve.
Le terrain du bien est de 250 m².
Plusieurs établissements scolaires (maternelle, élémentaire, primaire et collège) se trouvent à moins de 10 minutes à pied. Côté transports en commun, il y a les lignes de RER B et E ainsi que 26 gares à moins de 10 minutes en voiture. On trouve un bassin de natation, une bibliothèque, un tennis, des commerces, quatre boulangeries, une supérette, une boucherie-charcuterie et un bureau de poste à proximité. Le marché Rue de Gaulle anime les environs.
Elle est à vendre pour la somme de 450 000 €.
Contactez Teddy MELES (06-17-56-83-36) pour tout renseignement sur la maison, sur les démarches à suivre et sur les modalités de vente. Maisons France Confort Magny-le-Hongre vous accompagne à toutes les étapes de votre projet et dans tous vos projets immobiliers.
Annonce proposée par un Agent Commercial Partenaire.
Mentions légales
Terrain proposé par un partenaire foncier selon disponibilités et autorisation de publicité au prix de 170 000 €. Hors droit d'enregistrement et frais de notaire. Terrain + Maison proposés au prix de 450 000 € (Hors branchements et raccordements, papiers peints, peintures, revêtement de sol dans les chambres. Tarif modifiable sans préavis). Etiquette énergie : A. Différents modèles disponibles pour ce terrain. Assurances et garanties du constructeur (RC professionnelle, décennale, dommage ouvrage, garantie de remboursement de l'acompte, livraison à prix et délai convenu) : https://www.maisons-france-confort.fr/mentions-legales/. HEXAOM Services est enregistré auprès de l'ORIAS en tant que Courtier en financement, Niveau 1, sous le numéro 14001345.Agence Maisons France Confort de Mareuil-lès-Meaux (77100)
- Téléphone :
- 01 60 09 28 30
- Adressse :
- Domexpo Est Village La Hayette
77100 Mareuil-lès-Meaux, France
