Maison neuve à
Villeparisis
(77270) Référence :
TM2439662_1
Prix du projet : Maison avec Terrain
prix 390 000 €
- 5 pièces
- 3 chambres
- Surface maison 90 m2
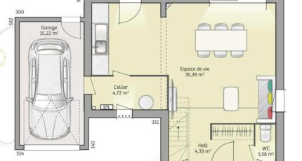
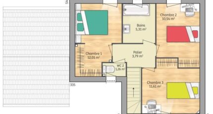
VENTE : maison de 5 pièces (90 m²) à Villeparisis
MAISON 5 PIÈCES NEUVE
À deux pas de la station Villeparisis-Mitry-le-Neuf (Paris à 30 min par le RER B), nous vous proposons cette maison de 5 pièces de 90 m² en vente à Villeparisis (77270). Elle propose trois chambres, une cuisine et une salle de bains.
Le terrain du bien s'étend sur 400 m².
Cette maison compte 2 niveaux. Elle est neuve.
Plusieurs établissements scolaires (maternelle, élémentaire, primaire et collège) sont implantés à moins de 10 minutes à pied. Niveau transports en commun, on trouve les lignes B et E du RER ainsi que 26 gares à moins de 10 minutes en voiture. Il y a un bassin de natation, une bibliothèque, un tennis, des commerces, quatre boulangeries, une supérette, une boucherie-charcuterie et trois épiceries dans les environs. Le marché Rue de Gaulle anime les environs.
Son prix de vente est de 390 000 €.
N'hésitez pas à prendre contact avec notre agence (Teddy MELES : 06-17-56-83-36) pour plus d'informations sur cette maison ou sur les démarches à suivre. Maisons France Confort Magny-le-Hongre est là pour vous accompagner dans tous vos projets immobiliers.
Annonce proposée par un Agent Commercial Partenaire.
Mentions légales
Terrain proposé par un partenaire foncier selon disponibilités et autorisation de publicité au prix de 240 000 €. Hors droit d'enregistrement et frais de notaire. Terrain + Maison proposés au prix de 390 000 € (Hors branchements et raccordements, papiers peints, peintures, revêtement de sol dans les chambres. Tarif modifiable sans préavis). Etiquette énergie : A. Différents modèles disponibles pour ce terrain. Assurances et garanties du constructeur (RC professionnelle, décennale, dommage ouvrage, garantie de remboursement de l'acompte, livraison à prix et délai convenu) : https://www.maisons-france-confort.fr/mentions-legales/. HEXAOM Services est enregistré auprès de l'ORIAS en tant que Courtier en financement, Niveau 1, sous le numéro 14001345.Agence Maisons France Confort de Magny-le-Hongre (77700)
- Téléphone :
- 01 84 80 92 96
- Adressse :
- 11 rue de Courtalin
77700 Magny-le-Hongre, France
