Maison neuve à
Villeparisis
(77270) Référence :
TM2472457_1
Prix du projet : Maison avec Terrain
prix 330 000 €
- 5 pièces
- 3 chambres
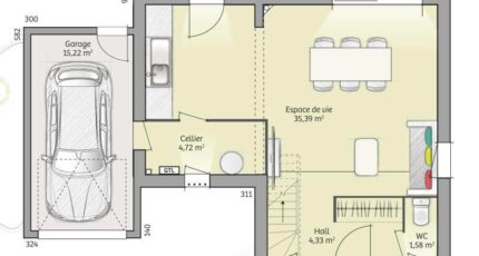
- Surface maison 90 m2
VENTE d'une maison de 5 pièces (90 m²) à Villeparisis
QUARTIER RECHERCHÉ - MAISON 5 PIÈCES NEUVE
À côté de la station Villeparisis-Mitry-le-Neuf (Paris à 30 min par le RER B), nous vous proposons en vente, dans un quartier prisé de Villeparisis (77270), cette maison de 5 pièces de 90 m² et de 300 m² de terrain. Elle inclut trois chambres, une cuisine et une salle de bains.
Il s'agit d'une maison de 2 niveaux. Elle est neuve.
La maison se trouve dans un secteur recherché. Il y a plusieurs écoles (maternelle, élémentaire, primaire et collège) à moins de 10 minutes à pied. Niveau transports, on trouve deux lignes de RER (B et E) ainsi que 26 gares à moins de 10 minutes en voiture. Il y a un bassin de natation, une bibliothèque, un tennis, des commerces, deux boucheries-charcuteries, deux épiceries et trois supérettes à proximité de la maison. Enfin, le marché Rue de Gaulle anime le quartier.
Elle est à vendre pour la somme de 330 000 €.
Contactez notre agence (MELES Teddy : 06-17-56-83-36) pour plus d'informations sur la maison ou sur les démarches à suivre. Maisons France Confort Magny-le-Hongre est là pour vous accompagner dans tous vos projets immobiliers.
Annonce proposée par un Agent Commercial Partenaire.
Mentions légales
Terrain proposé par un partenaire foncier selon disponibilités et autorisation de publicité au prix de 160 000 €. Hors droit d'enregistrement et frais de notaire. Terrain + Maison proposés au prix de 330 000 € (Hors branchements et raccordements, papiers peints, peintures, revêtement de sol dans les chambres. Tarif modifiable sans préavis). Etiquette énergie : A. Différents modèles disponibles pour ce terrain. Assurances et garanties du constructeur (RC professionnelle, décennale, dommage ouvrage, garantie de remboursement de l'acompte, livraison à prix et délai convenu) : https://www.maisons-france-confort.fr/mentions-legales/. HEXAOM Services est enregistré auprès de l'ORIAS en tant que Courtier en financement, Niveau 1, sous le numéro 14001345.Agence Maisons France Confort de Magny-le-Hongre (77700)
- Téléphone :
- 01 84 80 92 96
- Adressse :
- 11 rue de Courtalin
77700 Magny-le-Hongre, France
