Maison neuve à
Villiers-Adam
(95840) Référence :
VG2450800_1
Prix du projet : Maison avec Terrain
prix 309 712 €
- 5 pièces
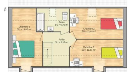
- 3 chambres
- Surface maison 80 m2
VENTE : maison de 5 pièces (80 m²) à Villiers-Adam
IDÉALEMENT SITUÉE - MAISON 5 PIÈCES NEUVE
À vendre : à côté du Transilien H (gare de Mériel, 40 min de Paris), idéalement située dans Villiers-Adam (95840), nous vous présentons cette maison de 5 pièces de 80 m² et de 300 m² de terrain.
Cette maison possède 2 niveaux. Elle inclut trois chambres, une cuisine et une salle de bains. Cette maison est neuve.
La maison se trouve dans un secteur recherché. Il y a l'École Primaire Publique Paul Cézanne à moins de 10 minutes à pied. Niveau transports en commun, on trouve la ligne de RER C (Montigny-Beauchamp) . On trouve un tennis, une bibliothèque et un commerce à proximité du logement.
Elle est à vendre pour la somme de 309 712 €.
Contactez Vincent GAUDU (tél : 07-89-23-62-11) pour toute question sur la maison, sur les démarches à suivre ou sur les modalités de vente. Donnez vie à vos projets immobiliers avec Maisons France Confort Moisselles.
Mentions légales
Terrain proposé par un partenaire foncier selon disponibilités et autorisation de publicité au prix de 136 000 €. Hors droit d'enregistrement et frais de notaire. Terrain + Maison proposés au prix de 309 712 € (Hors branchements et raccordements, papiers peints, peintures, revêtement de sol dans les chambres. Tarif modifiable sans préavis). Etiquette énergie : A. Différents modèles disponibles pour ce terrain. Assurances et garanties du constructeur (RC professionnelle, décennale, dommage ouvrage, garantie de remboursement de l'acompte, livraison à prix et délai convenu) : https://www.maisons-france-confort.fr/mentions-legales/. HEXAOM Services est enregistré auprès de l'ORIAS en tant que Courtier en financement, Niveau 1, sous le numéro 14001345.Agence Maisons France Confort de Moisselles (95570)
- Téléphone :
- 01 39 91 72 46
- Adressse :
- Domexpo Nord
95570 Moisselles, France
