Maison neuve à
Villiers-Adam
(95840) Référence :
VG2450800_2
Prix du projet : Maison avec Terrain
prix 331 205 €
- 6 pièces
- 4 chambres
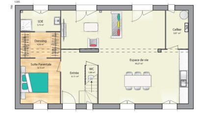
- Surface maison 105 m2
VENTE : maison de 6 pièces (105 m²) à Villiers-Adam
IDÉALEMENT SITUÉE - MAISON 6 PIÈCES NEUVE
À vendre : à proximité du Transilien H (gare de Mériel, 40 min de Paris), idéalement située dans Villiers-Adam (95840), nous sommes ravis de vous proposer cette maison de 6 pièces de 105 m² et de 300 m² de terrain.
Il s'agit d'une maison de 2 niveaux. Elle dispose de quatre chambres, d'une cuisine et de deux salles de bains. Cette maison est neuve.
La maison se trouve dans un secteur prisé. L'École Primaire Publique Paul Cézanne est implantée à moins de 10 minutes à pied. Niveau transports, il y a la ligne de RER C (Montigny-Beauchamp). On trouve un tennis, une bibliothèque et un commerce à proximité du bien.
Son prix de vente est de 331 205 €.
Contactez Vincent GAUDU (tél : 07-89-23-62-11) pour plus de renseignements sur la maison. Faites de vos projets immobiliers une réalité avec Maisons France Confort Moisselles.
Mentions légales
Terrain proposé par un partenaire foncier selon disponibilités et autorisation de publicité au prix de 136 000 €. Hors droit d'enregistrement et frais de notaire. Terrain + Maison proposés au prix de 331 205 € (Hors branchements et raccordements, papiers peints, peintures, revêtement de sol dans les chambres. Tarif modifiable sans préavis). Etiquette énergie : A. Différents modèles disponibles pour ce terrain. Assurances et garanties du constructeur (RC professionnelle, décennale, dommage ouvrage, garantie de remboursement de l'acompte, livraison à prix et délai convenu) : https://www.maisons-france-confort.fr/mentions-legales/. HEXAOM Services est enregistré auprès de l'ORIAS en tant que Courtier en financement, Niveau 1, sous le numéro 14001345.Agence Maisons France Confort de Moisselles (95570)
- Téléphone :
- 01 39 91 72 46
- Adressse :
- Domexpo Nord
95570 Moisselles, France
