Maison neuve à
Villy-sur-Yères (76260) Référence : DD_eu44_04-2_1

Prix du projet : Maison avec Terrain

prix 145 500 €

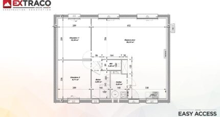
  • 3 pièces
  • 2 chambres
  • Surface maison 65 m2

Villy-sur-Yères : maison F3 (65 m²) en vente
MAISON 3 PIÈCES NEUVE
À vendre, nous vous présentons cette maison de 3 pièces de plain-pied de 65 m² à Villy-sur-Yères (76260). Elle inclut deux chambres, une cuisine et une salle de bains.
Le terrain du bien s'étend sur 1 000 m².
La maison est neuve.
Il y a une école élémentaire dans le quartier. Niveau transports en commun, on trouve la gare Longroy-Gamaches à moins de 10 minutes en voiture. Il y a un accès à l'autoroute A28 à 14 km. Il y a une bibliothèque dans les environs.
Elle est proposée à l'achat pour 145 500 €.
Prenez contact avec notre agence (Delphine DERULLES : 06-67-13-79-40) pour obtenir de plus amples informations sur cette maison ou sur les modalités de vente. Faites de vos projets immobiliers une réalité avec Les Maisons Extraco Eu.

Mentions légales

Terrain proposé par un partenaire foncier selon disponibilités et autorisation de publicité au prix de 32 600 €. Hors droit d'enregistrement et frais de notaire. Maison proposée, avec un contrat de construction de maison individuelle, dans le cadre de la loi du 19/12/1990, au prix de 112 900 € (Hors branchements et raccordements, papiers peints, peintures, revêtement de sol dans les chambres, qui sont chiffrés dans les travaux qui restent à charge du client. Tarif modifiable sans préavis). Étiquette énergie : A. Différents modèles disponibles pour ce terrain. Assurances et garanties du constructeur comprises (RC professionnelle, décennale, dommage ouvrage).