Maison neuve à
Viriat (01440) Référence : SG2632_3

Prix du projet : Maison avec Terrain

prix 392 500 €

  • 4 pièces
  • 3 chambres
  • Surface maison 115 m2

Viriat : maison F4 (115 m²) en vente
MAISON 4 PIÈCES NEUVE - PROCHE DE BOURG-EN-BRESSE
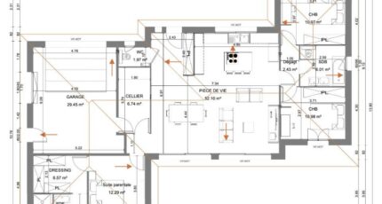
En vente à quelques kilomètres de Bourg-en-Bresse, nous vous proposons cette maison de 4 pièces de plain-pied de 115 m² et de 1 040 m² de terrain à Viriat (01440).
Son intérieur se divise en trois chambres, une cuisine et deux salles de bains. Cette maison est neuve.
Il y a des écoles primaires dans la commune et dont l'École Primaire Privée Saint Joseph. Côté transports, on trouve deux gares (Bourg-en-Bresse et Polliat) à moins de 10 minutes en voiture. Les autoroutes A39 et A40 sont accessibles à moins de 4 km. Il y a une bibliothèque et un commerce à proximité.
Elle est à vendre pour la somme de 392 500 €.
N'hésitez pas à prendre contact avec notre agence (GABRILLARGUES Sébastien : 06-81-77-73-67) pour plus de renseignements sur la maison ou sur les modalités de vente. Donnez vie à vos projets immobiliers avec Maisons France Confort Bourg-en-Bresse.

Annonce proposée par un Agent Commercial Partenaire.

Mentions légales

Terrain proposé par un partenaire foncier selon disponibilités et autorisation de publicité au prix de 140 000 €. Hors droit d'enregistrement et frais de notaire. Terrain + Maison proposés au prix de 392 500 € (Hors branchements et raccordements, papiers peints, peintures, revêtement de sol dans les chambres. Tarif modifiable sans préavis). Etiquette énergie : A. Différents modèles disponibles pour ce terrain. Assurances et garanties du constructeur (RC professionnelle, décennale, dommage ouvrage, garantie de remboursement de l'acompte, livraison à prix et délai convenu) : https://www.maisons-france-confort.fr/mentions-legales/. HEXAOM Services est enregistré auprès de l'ORIAS en tant que Courtier en financement, Niveau 1, sous le numéro 14001345.

Contactez l'agence de Bourg-en-Bresse

04 74 14 04 47

    * Champs obligatoires

    Vos informations sont traitées par HEXAOM et transmises à un conseiller commercial qui vous contactera afin de répondre à votre demande. Les plans et images présentés sur notre site sont la propriété d’HEXAOM et ne peuvent pas être reproduits sans son accord. Pour retrouver notre politique de protection des données personnelles et exercer vos droits conformément à la « loi informatique et liberté » cliquez-ici.